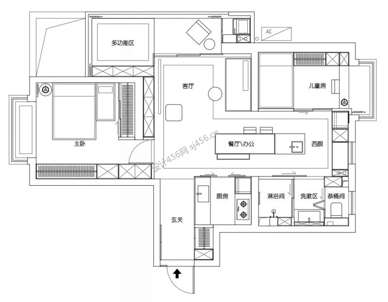
设计理念: 这套房子建筑面积92平米,一家三口居住,男业主是创业工作者,工作会议占据了生活的大部分时间,剩余的时间希望可以用心陪陪家人和孩子女业主的工作则比较规律,周末时间,偶尔有三五好友来聚餐面对未来生活的种种可能,如何才能让设计满足未来15年的居住需求呢? 这套房子建筑面积92平米,一家三口居住,男业主是创业工作者,工作会议占据了生活的大部分时间,剩余的时间希望可以用心陪陪家人和孩子女业主的工作则比较规律,周末时间,偶尔有三五好友来聚餐面对未来生活的种种可能,如何才能让设计满足未来15年的居住需求呢?
详情上一篇: 滨河家园90平现代两室装修案例
下一篇: 名家公馆120平现代木质公寓装修案例
免费申请
装修服务
客服回访
确认需求
三份报价
方案 P K
享第三方
装修保障