执照认证 钻石商家
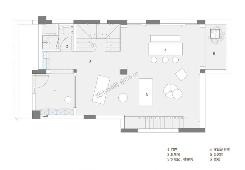
设计理念: 浪漫屋 委托人 医美行业管理层 姐姐喜欢浪漫的氛围 设计方面结构改造较多、选择法式风格也非常符合姐姐的气质 浪漫屋 委托人 医美行业管理层 姐姐喜欢浪漫的氛围 设计方面结构改造较多、选择法式风格也非常符合姐姐的气质
上一篇: 保利拾光年98平方北欧三居装修案例
下一篇: 金隅悦城102平米法式二居装修案例
今日已有221位业主免费获取到报价清单
地 址: 天津市南开区年丰路91号(6号线天拖地铁站旁)
电 话: 17726087329
联系人: 杨女士
关于我们 联系我们 装修保障 意见反馈
蜀ICP备12015828号-11
川公网安备 51099002000103号
增值电信业务许可证:川B2-20200816
手机版 | 电脑版
免费申请装修服务
客服回访确认需求
三份报价方案 P K
享第三方装修保障
您的信息将被严格保密,《隐私保护条例》