设计理念: 第1张图设计说明:沙发背景墙的仿古锈地板,一副《观沧海》彰显着豪放的气势,浓郁的古典文学韵味洋溢其中。 第2张图设计说明:大厅中的水晶吊灯体现了现代中国风与古典欧式风的情景交融。 第3张图设计说明:墙面使用了欧式太阳线,充分划分出上下墙的层次,让空间更有立体感。 第4张图设计说明:回眸大厅,黑色与暖红橙是设计师的主选色调.深色的沙发和茶几,咖啡色的纱帘与纯白色的天花板有规律的交叠,蕴含低调的中式韵味; 第5张图设计说明:上下墙面壁纸的划分很巧妙在运用了中工古典壁画,并用太阳线勾勒出了相框的造型,让人遐想。 第6张图设计说明:入户门鞋帽柜实用而赋有层次静感。 第1张图设计说明:沙发背景墙的仿古锈地板,一副《观沧海》彰显着豪放的气势,浓郁的古典文学韵味洋溢其中。 第2张图设计说明:大厅中的水晶吊灯体现了现代中国风与古典欧式风的情景交融。 第3张图设计说明:墙面使用了欧式太阳线,充分划分出上下墙的层次,让空间更有立体感。 第4张图设计说明:回眸大厅,黑色与暖红橙是设计师的主选色调.深色的沙发和茶几,咖啡色的纱帘与纯白色的天花板有规律的交叠,蕴含低调的中式韵味; 第5张图设计说明:上下墙面壁纸的划分很巧妙在运用了中工古典壁画,并用太阳线勾勒出了相框的造型,让人遐想。 第6张图设计说明:入户门鞋帽柜实用而赋有层次静感。
详情中式仿古客厅仿古砖装修效果图
新中式客厅电视柜设计图案例
家装墙面护墙板装修效果图
沙发背景墙仿古砖墙面装修效果图
客厅餐厅一体蓝色墙面装修效果图片
进门玄关家用储物柜装修效果图
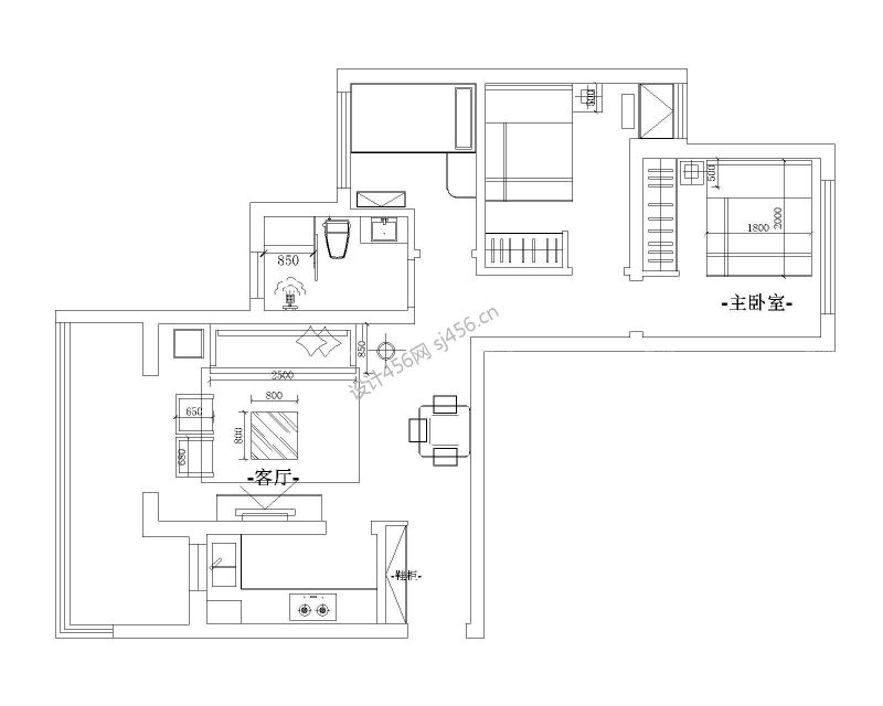
96平米房屋户型图
上一篇: 没有啦
下一篇: 格调春天-120平美式装修效果图
免费申请
装修服务
客服回访
确认需求
三份报价
方案 P K
享第三方
装修保障