执照认证 钻石商家
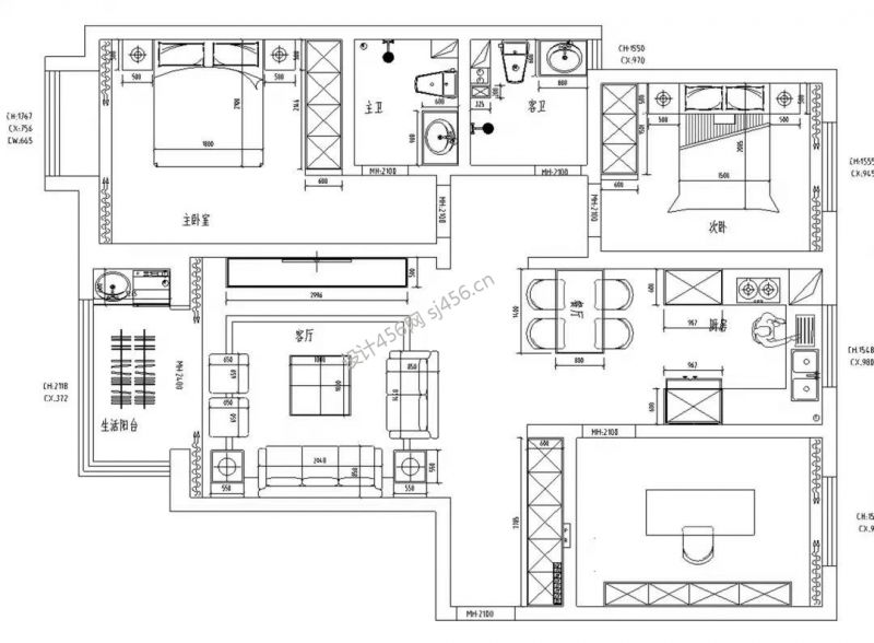
设计理念: 本次设计最大限度的使所有的家居设计陈列都已最简单的方式呈现,并取消了多余复杂的东西。从而使室内室外宽敞明亮、线条和色彩单一而又不缺乏趣味,营造一种空间感和艺术感,且具有实用、简洁、功能性强等特点。 本次设计最大限度的使所有的家居设计陈列都已最简单的方式呈现,并取消了多余复杂的东西。从而使室内室外宽敞明亮、线条和色彩单一而又不缺乏趣味,营造一种空间感和艺术感,且具有实用、简洁、功能性强等特点。
上一篇: 保利堂悦158㎡新中式风格三室两厅装修案例
下一篇: 东南智慧城149㎡简约轻奢,看一眼就是心动
今日已有221位业主免费获取到报价清单
地 址: 裕华区谈固东街与槐安东路交口西南角
电 话: 13722999850
联系人: 郝泽鹏
关于我们 联系我们 装修保障 意见反馈
蜀ICP备12015828号-11
川公网安备 51099002000103号
增值电信业务许可证:川B2-20200816
手机版 | 电脑版
免费申请装修服务
客服回访确认需求
三份报价方案 P K
享第三方装修保障
您的信息将被严格保密,《隐私保护条例》