执照认证 会员商家
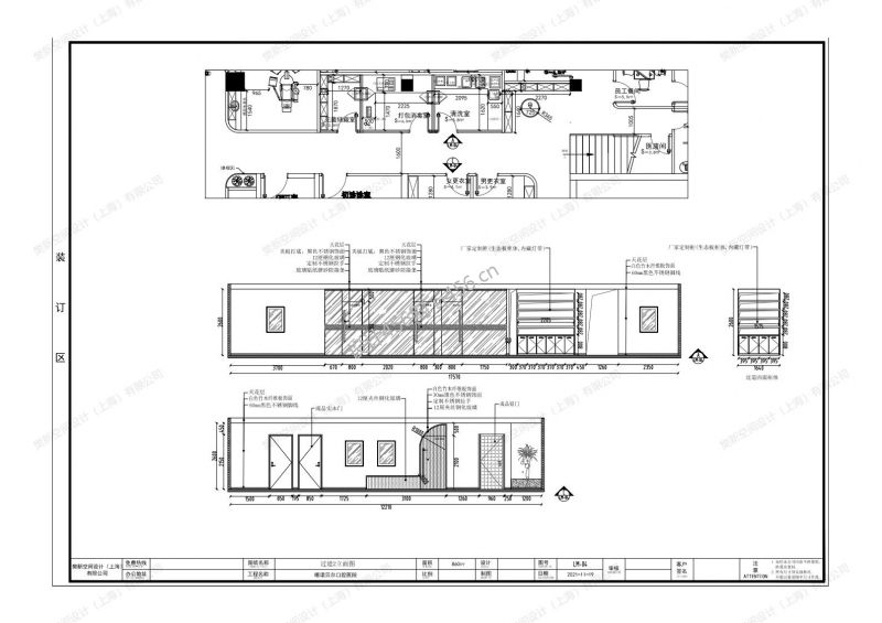
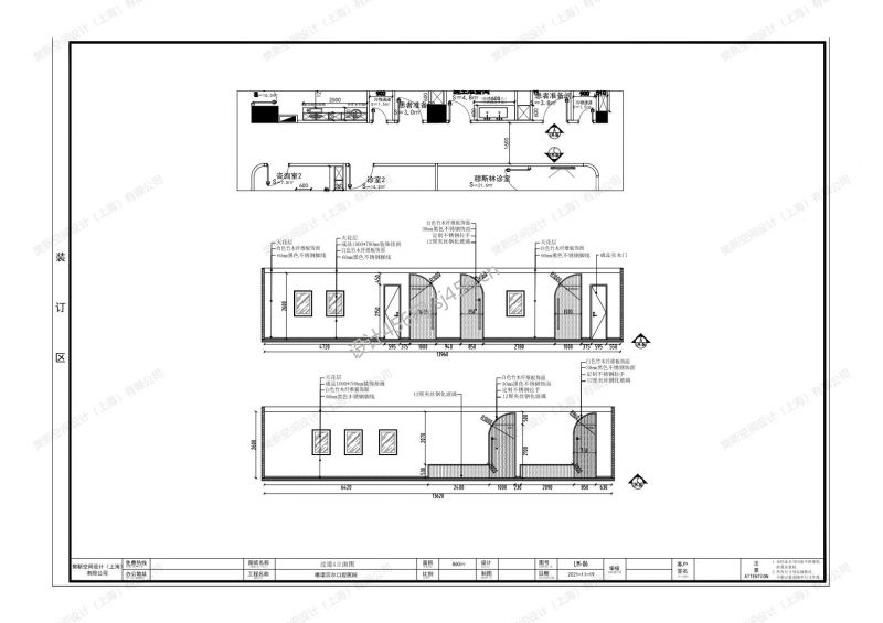
设计理念: 800平现代口腔诊所装修设计案例 800平现代口腔诊所装修设计案例
上一篇: 220平现代口腔诊所的装修案例
下一篇: 没有啦
今日已有221位业主免费获取到报价清单
地 址: 上海市宝山区友谊路1518弄8号101室、9号1层、10号1层
关于我们 联系我们 装修保障 意见反馈
蜀ICP备12015828号-11
川公网安备 51099002000103号
增值电信业务许可证:川B2-20200816
手机版 | 电脑版
免费申请装修服务
客服回访确认需求
三份报价方案 P K
享第三方装修保障
您的信息将被严格保密,《隐私保护条例》