设计理念: 日式风格又称为和式风格,具有简洁、清新、淡雅的独特风格,其中日式风格最具代表性的就是“榻榻米”了。 日式风格又称为和式风格,具有简洁、清新、淡雅的独特风格,其中日式风格最具代表性的就是“榻榻米”了。
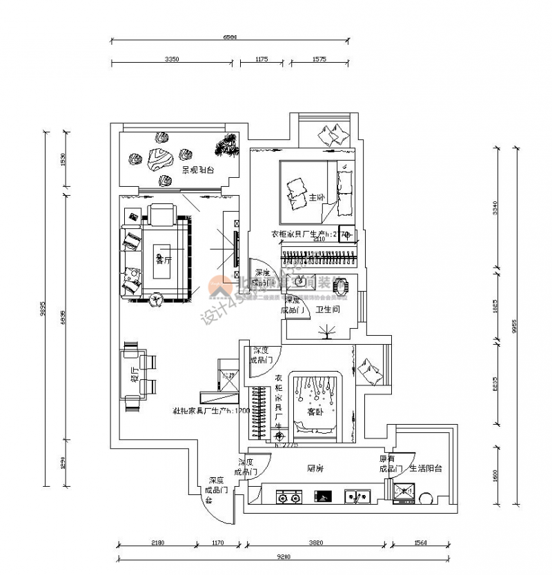
详情宁越花园70平简约日式风格新房装修户型图
宁越花园70平简约日式风格新房客厅木质茶几图片
宁越花园70平简约日式风格新房客厅电视墙图片
宁越花园70平简约日式风格新房玄关隔断设计图
宁越花园70平简约日式风格餐厅背景墙设计图
宁越花园70平简约日式风格家庭客餐厅装修图片
上一篇: 霖峰壹号——北欧风格装修
下一篇: 农垦家园——现代简约装修风格欣赏
免费申请
装修服务
客服回访
确认需求
三份报价
方案 P K
享第三方
装修保障