当前城市:  [切换]
一站式装修设计平台,为您提供优质装修服务!
设计456欢迎您!
当前位置: 首页> 装修效果图> 家居设计>

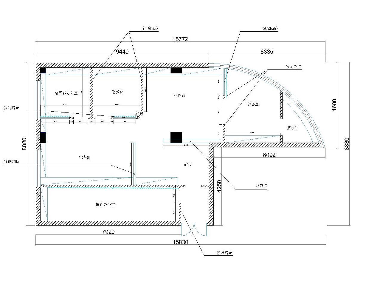
2025办公室布局图大全

您的信息将被严格保密,《隐私保护条例

今日已有526位业主获取设计方案
本地优质装修公司
装修成这样要花多少钱?

材料费:?

人工费:?

设计费:?

质检费:?

您的信息将被严格保密,《隐私保护条例

今日已有526位业主免费获取到报价清单
装修成这样要花多少钱!
上一页 上一页