设计理念: 户型原始结构布局很差,经过平面布局改造后让厨房边的更大一些。入户的阳台改造成女儿房间 和一个玄关的换鞋区。主卧次卧功能对换,以采光更好的房间做主卧室,转角飘窗该做梳妆台兼书桌、办公区。满足一家人所有的生活习惯和收纳功能。 户型原始结构布局很差,经过平面布局改造后让厨房边的更大一些。入户的阳台改造成女儿房间 和一个玄关的换鞋区。主卧次卧功能对换,以采光更好的房间做主卧室,转角飘窗该做梳妆台兼书桌、办公区。满足一家人所有的生活习惯和收纳功能。
详情现代风格餐厅客厅隔断设计效果图
2020现代餐厅灯效果图 2020现代餐厅背景墙图
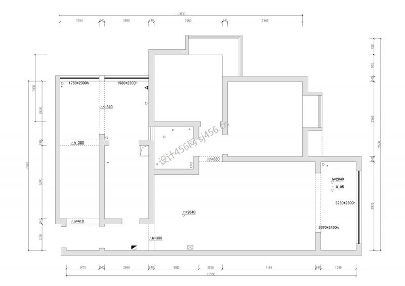
三居室户型图
现代风格客厅隔断设计效果图
现代风格客厅隔断餐厅设计效果图
2020现代过道装修效果图 2020现代过道设计效果图
现代风格室内走廊装饰画布置效果图
上一篇: 华胥南苑(117平米现代)
下一篇: 广夏上品-现代简约风格
免费申请
装修服务
客服回访
确认需求
三份报价
方案 P K
享第三方
装修保障