会员商家
设计理念: 客户是一个山东小伙个性开朗豪爽,户型主卧室门在客厅电视背景墙边无法错开所以背景墙采用硬包处理成隐形门,与整个背景墙融为一体,看起来大气舒适。书房落地飘窗榻榻米形式可以享受午后阳光。 客户是一个山东小伙个性开朗豪爽,户型主卧室门在客厅电视背景墙边无法错开所以背景墙采用硬包处理成隐形门,与整个背景墙融为一体,看起来大气舒适。书房落地飘窗榻榻米形式可以享受午后阳光。
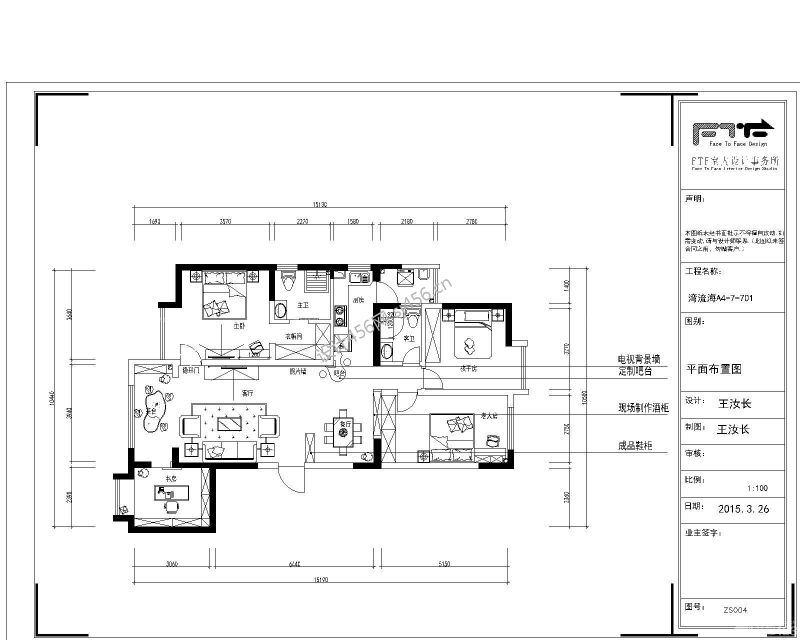
最佳户型图四室 房子设计图
现代风格家装餐厅设计装修图片欣赏
现代风格客厅转角沙发装修图片大全
现代风格家装书房设计装修图片
现代风格装修 家装卧室设计
上一篇: 盛高大城
下一篇: 凤凰御景
今日已有221位业主免费获取到报价清单
地 址: 云南省昆明市西山区环城南路汕头大厦B座3楼
电 话: 18669264093
联系人: 张雪然
关于我们 联系我们 装修保障 意见反馈
蜀ICP备12015828号-11
川公网安备 51099002000103号
增值电信业务许可证:川B2-20200816
手机版 | 电脑版
免费申请装修服务
客服回访确认需求
三份报价方案 P K
享第三方装修保障
您的信息将被严格保密,《隐私保护条例》