设计理念: 客户是一个50多岁的客户,有个很疼爱又有个性的女儿,都比较有主见,所以在设计处理上电视背景墙,采用了砖纹效果,在现代都市的空间中寻求一种时间的沉淀感,将复古风格与现代风格充分结合 圆弧形的吊顶就成了最好的缓冲纽带,搭配木质餐桌复古而又现代相结合 。就好像父女之间很好的融合。 客户是一个50多岁的客户,有个很疼爱又有个性的女儿,都比较有主见,所以在设计处理上电视背景墙,采用了砖纹效果,在现代都市的空间中寻求一种时间的沉淀感,将复古风格与现代风格充分结合 圆弧形的吊顶就成了最好的缓冲纽带,搭配木质餐桌复古而又现代相结合 。就好像父女之间很好的融合。
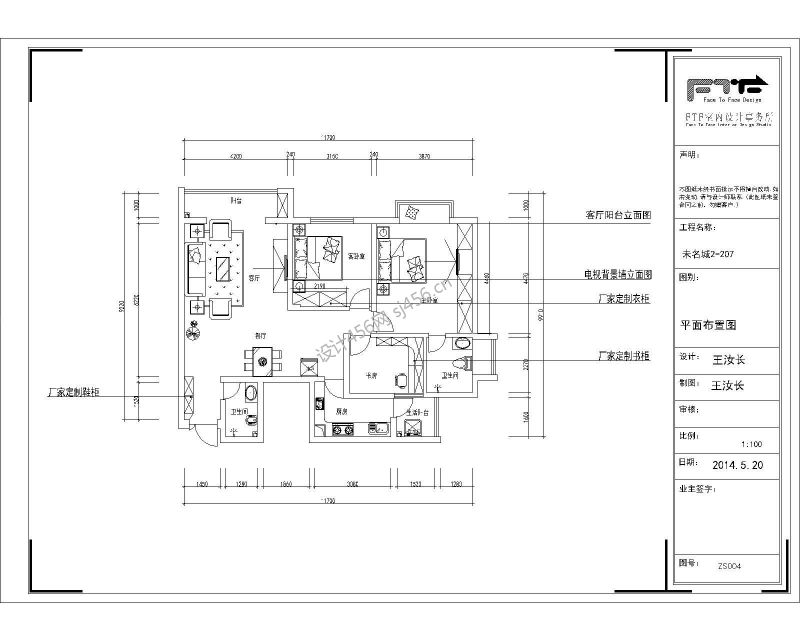
详情三居户型图 房子设计
现代风格装修 客厅设计
现代风格客厅灯带装修图片
现代风格家装卧室装修设计图片
免费申请
装修服务
客服回访
确认需求
三份报价
方案 P K
享第三方
装修保障