设计理念: 入门玄关位置的效果展示,采用苏州园林“景中造画”的概念来进行设计。从意境上最大限度的体现书房中式的意境。让人一眼望去即是玄关装饰又是书房入口。摆脱了常规的挂画,老旧硬装造型的处理。从墙到顶做了一条链接的线性灯装饰让整个空间及造型有了灵动感。设计想法超前感的体现,是禅意与后现代的意境的碰撞。 客厅位置展示,上楼楼梯旋转式设计,楼梯台阶下方暗藏灯带。楼梯下造景。中空电视背景墙采用光电玻璃和射灯的结合。客厅沙发区域采用下沉式的设计让整个空间有“柔”与“刚”的结合。流线型灯条衔接整个的墙顶面与整个空间结合。 客厅位置另一空间展示,玄关墙中位置暗藏灯带,一方面满足了入门的采光,另一方面2000K暖黄色光与客厅外6000K冷白光产生强烈的对比感。利用光色产生视觉冲击感。沙发背景墙利用光杆吊灯打在背景墙上造成光影形成天然背景。 书房内部效果,采用浅胡桃色来做中式脱离老中的陈旧感。与外部的现代感不会产生太大的反差感。不会整体脱节。 书房最大的亮点是书柜对面的背景造景,利用后期设计做内藏灯带,做了一个天然的造景区域,让本来沉闷单调的书房区域添加了乐趣与情趣。喜欢的朋友欢迎致电:博澜装饰设计:13154710202(微信同号)。 入门玄关位置的效果展示,采用苏州园林“景中造画”的概念来进行设计。从意境上最大限度的体现书房中式的意境。让人一眼望去即是玄关装饰又是书房入口。摆脱了常规的挂画,老旧硬装造型的处理。从墙到顶做了一条链接的线性灯装饰让整个空间及造型有了灵动感。设计想法超前感的体现,是禅意与后现代的意境的碰撞。 客厅位置展示,上楼楼梯旋转式设计,楼梯台阶下方暗藏灯带。楼梯下造景。中空电视背景墙采用光电玻璃和射灯的结合。客厅沙发区域采用下沉式的设计让整个空间有“柔”与“刚”的结合。流线型灯条衔接整个的墙顶面与整个空间结合。 客厅位置另一空间展示,玄关墙中位置暗藏灯带,一方面满足了入门的采光,另一方面2000K暖黄色光与客厅外6000K冷白光产生强烈的对比感。利用光色产生视觉冲击感。沙发背景墙利用光杆吊灯打在背景墙上造成光影形成天然背景。 书房内部效果,采用浅胡桃色来做中式脱离老中的陈旧感。与外部的现代感不会产生太大的反差感。不会整体脱节。 书房最大的亮点是书柜对面的背景造景,利用后期设计做内藏灯带,做了一个天然的造景区域,让本来沉闷单调的书房区域添加了乐趣与情趣。喜欢的朋友欢迎致电:博澜装饰设计:13154710202(微信同号)。
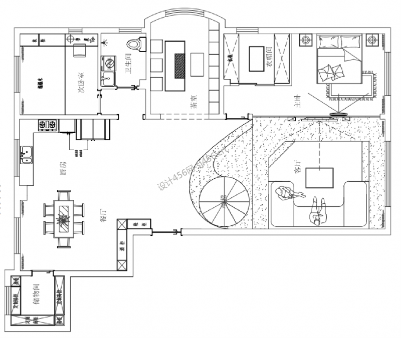
详情270平米别墅极简风格装修设计平面图欣赏
270平米别墅极简风格装修设计平面图
270平米别墅极简风格背景墙装修设计效果图
270平米别墅极简风格楼梯装修设计效果图
270平米别墅极简风格书房装修设计效果图
270平米别墅极简风格工艺品装修设计效果图
270平米别墅极简风格吊灯装修设计效果图
上一篇: YM酒吧全案设计效果表现
下一篇: 万锦.创客星空复式楼效果表现
免费申请
装修服务
客服回访
确认需求
三份报价
方案 P K
享第三方
装修保障