设计理念: 本案以华丽的装饰、浓烈的色彩、精美的造型形成华贵的装饰效果。从整体到局部,木护墙、线条和石材被大量运用,营造出奢华、大气且不失惬意、浪漫的空间氛围。 本案以华丽的装饰、浓烈的色彩、精美的造型形成华贵的装饰效果。从整体到局部,木护墙、线条和石材被大量运用,营造出奢华、大气且不失惬意、浪漫的空间氛围。
详情现代欧式风格143平米四居室客厅沙发效果图
欧式风格143平米四居室餐厅吊灯效果图
现代欧式风格143平米客厅地毯效果图
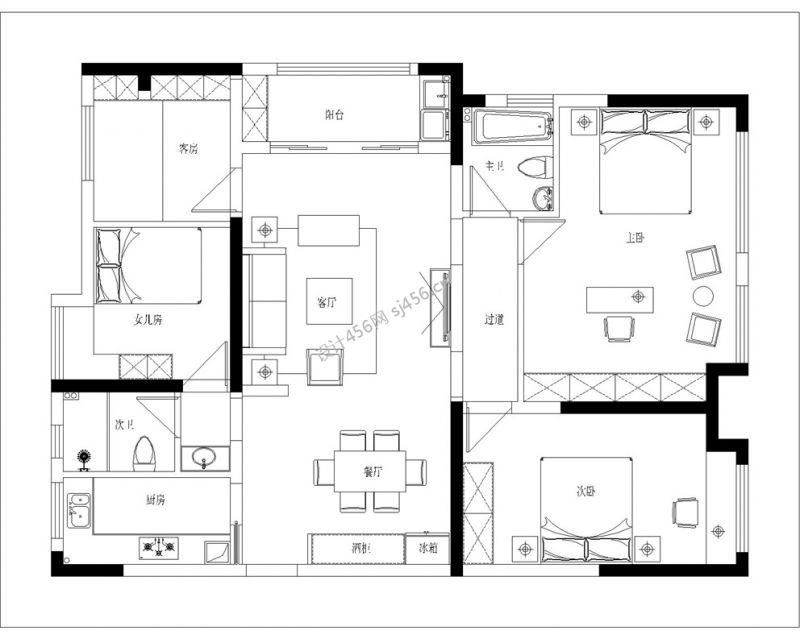
143平米欧式风格四居室户型图效果图
上一篇: 滨湖云谷111平米中式风格设计效果图
下一篇: 橡树湾港式风格132平米三居室装修效果图
免费申请
装修服务
客服回访
确认需求
三份报价
方案 P K
享第三方
装修保障