设计理念: 本方案是位于哈尔滨市松北区世茂大道与四环路交汇处世茂蓝屿小区,房屋是建筑面积79平一室一厅一卫户型。业主是一位很有自己想法的中年女士,长期在南方生活和工作,所以这处住所不会长期居住,为偶尔放假来北方避暑休闲之所。整体要求简约大气,温馨,舒适即可。本方案设计中用简单的手法营造出宜家感觉,简单舒适。 本方案是位于哈尔滨市松北区世茂大道与四环路交汇处世茂蓝屿小区,房屋是建筑面积79平一室一厅一卫户型。业主是一位很有自己想法的中年女士,长期在南方生活和工作,所以这处住所不会长期居住,为偶尔放假来北方避暑休闲之所。整体要求简约大气,温馨,舒适即可。本方案设计中用简单的手法营造出宜家感觉,简单舒适。
详情小户型厨房设计装修图片
小户型客厅转角沙发装修图片
小户型客厅设计装修效果图片欣赏
小户型客厅设计装修图片欣赏
卧室布艺窗帘装修图片欣赏
现代家装小户型设计效果图
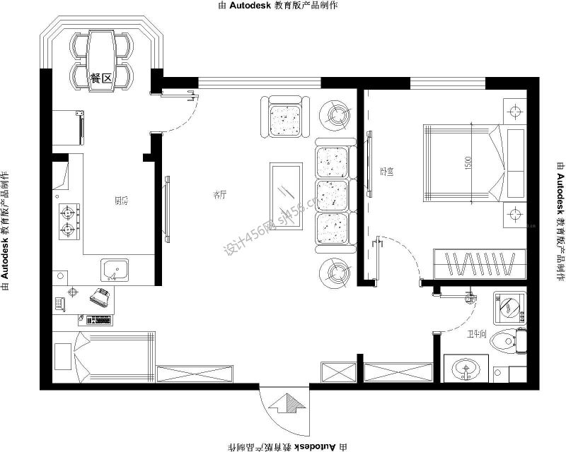
一居室房子户型图设计
上一篇: 善上居120平乡村田园风格清新美家
下一篇: 东方新天地92平田园风光清新美家
免费申请
装修服务
客服回访
确认需求
三份报价
方案 P K
享第三方
装修保障