设计理念: 楼盘地址:罗马佳洲 套内面积:113平方 装修主材:天然石材、艺术壁纸、石膏线条、全抛釉砖、银镜、马赛克 设计风格:简约欧式 承包模式:半包 工程造价:13万 设计说明:以大面积的暖色调为主,加于大理石和壁纸材质,使得整个空间非常的敞亮明快富有欧式气息,而欧式家居的加入以及欧式张条的增添,让现在的装饰 材质与经典的西方主义形成一种良性碰撞,摒弃古典欧式繁杂细致的造型,运用欧式线条及构造特别展现大气豪华的视觉空间,该种简约欧式风格与户主的气质相得益彰,凸显出了业主的生活品味与生活追求。 楼盘地址:罗马佳洲 套内面积:113平方 装修主材:天然石材、艺术壁纸、石膏线条、全抛釉砖、银镜、马赛克 设计风格:简约欧式 承包模式:半包 工程造价:13万 设计说明:以大面积的暖色调为主,加于大理石和壁纸材质,使得整个空间非常的敞亮明快富有欧式气息,而欧式家居的加入以及欧式张条的增添,让现在的装饰 材质与经典的西方主义形成一种良性碰撞,摒弃古典欧式繁杂细致的造型,运用欧式线条及构造特别展现大气豪华的视觉空间,该种简约欧式风格与户主的气质相得益彰,凸显出了业主的生活品味与生活追求。
详情欧式风格装修图片 客厅装修图片
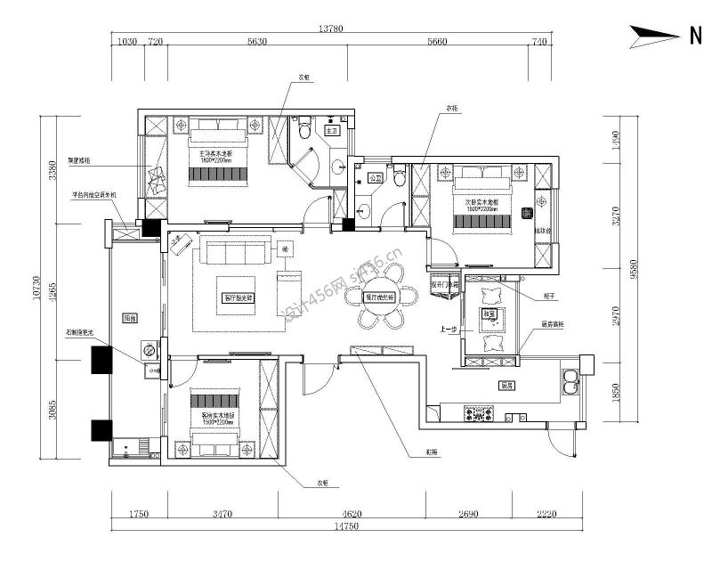
房子平面图设计装修效果图片
三居室房子户型设计图片欣赏
上一篇: 闽江世纪城16#01
下一篇: 世贸御龙湾21#01
免费申请
装修服务
客服回访
确认需求
三份报价
方案 P K
享第三方
装修保障