执照认证 会员商家
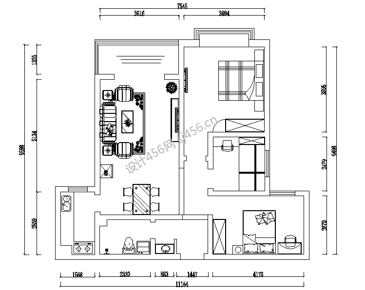
设计理念: 长治县盛元绿洲C座 108㎡ 现代简约☆ 项目户型:两室户型☆☆ 面积:108.0㎡☆☆☆ ☆ 装饰风格:现代简约☆☆ ☆ 长治县盛元绿洲C座 108㎡ 现代简约☆ 项目户型:两室户型☆☆ 面积:108.0㎡☆☆☆ ☆ 装饰风格:现代简约☆☆ ☆
上一篇: 长治县黎都水岸104㎡新中式二居室装修设计效果图
下一篇: 没有啦
今日已有221位业主免费获取到报价清单
地 址: 山西省长治市城区西一环路市建家园潞泽小区14号楼5号商铺
电 话: 15234599392
联系人: 崔经理
关于我们 联系我们 装修保障 意见反馈
蜀ICP备12015828号-11
川公网安备 51099002000103号
增值电信业务许可证:川B2-20200816
手机版 | 电脑版
免费申请装修服务
客服回访确认需求
三份报价方案 P K
享第三方装修保障
您的信息将被严格保密,《隐私保护条例》