在本期昆明二十四城装饰公司为我们带来的现代风格复式楼装修设计案例中,本案整体风格沉稳厚重,舒适安逸,昆明人对生活安逸感的追求,在自己的家中体现无遗。
实景案例基本信息
楼盘名称:白麓城
户型面积:232㎡
户型:五室两厅一厨两卫复式
风格:现代
设计师:刘硕辉
造价:60万
业主设计要求:在满足常住人口基本需求的前提下,能够有一些主人的小情趣,爱好收藏的小展示空间。
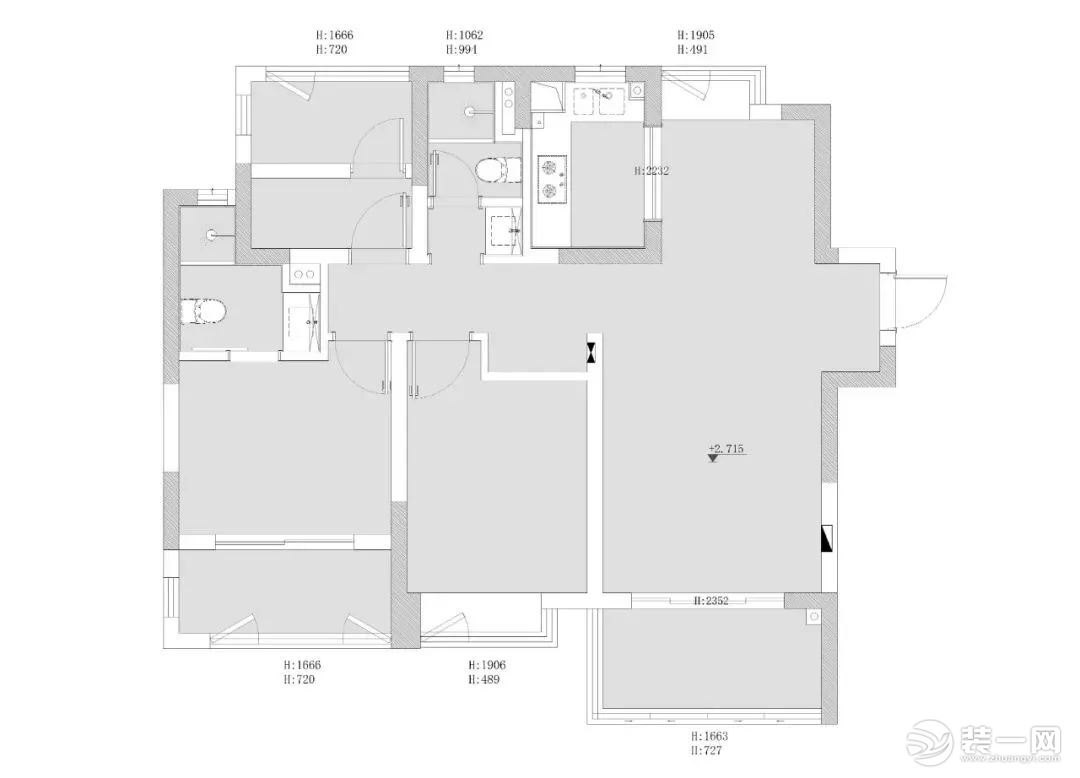
原始户型图

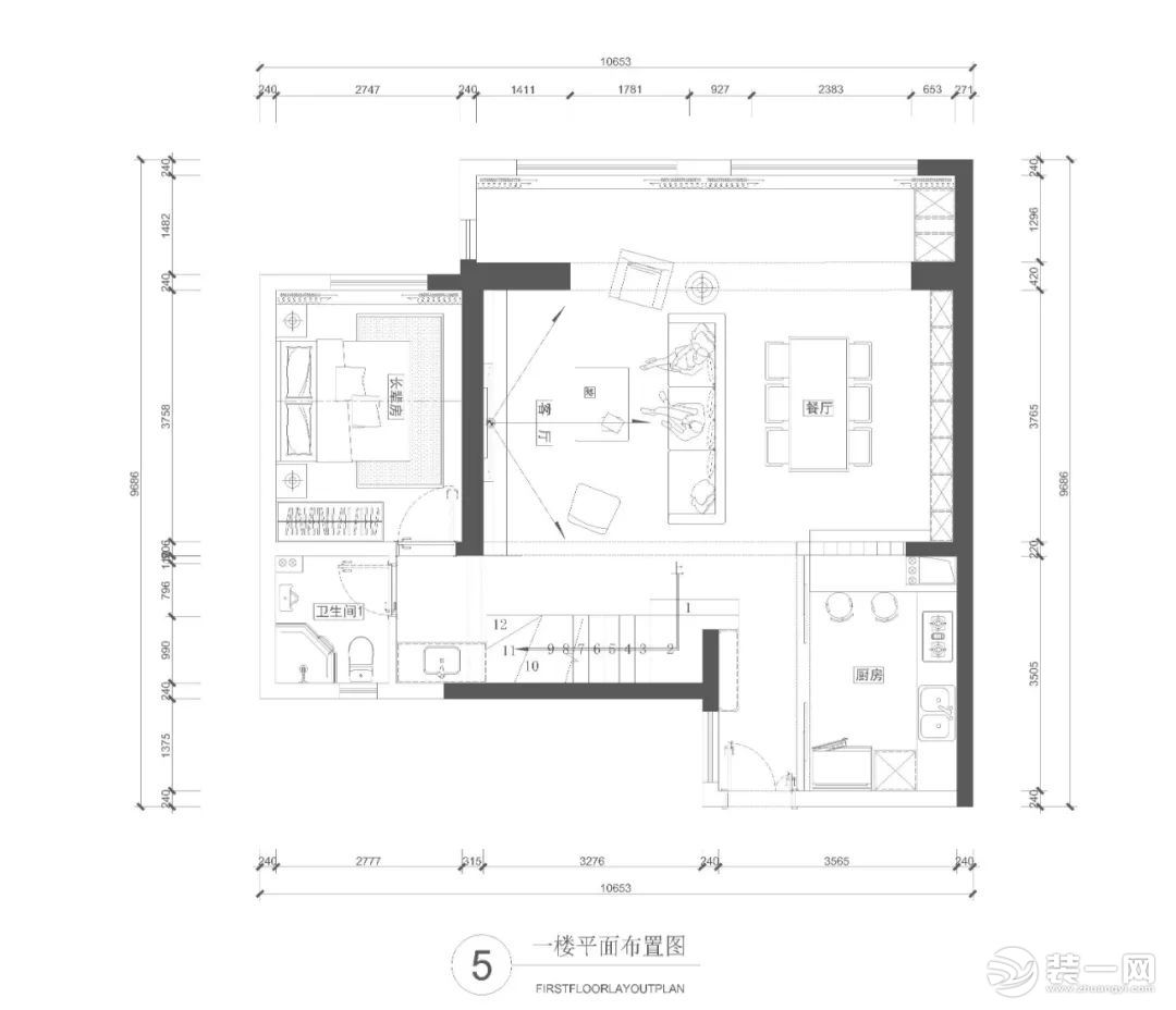
户型布局图

客厅
效果图

完工实景

沉稳厚重,舒适安逸,昆明人对生活安逸感的追求,在自己的家中体现无遗。
玄关&楼梯
效果图

完工实景

无主灯设计留出上部空间的开阔感,大砖通铺与质感十足的家具搭配,再加上棕色木纹营造出高端大宅的气度。
餐厅
效果图

完工实景

餐厅在客户的要求下增加了茶水岛台,与后面客户的木雕工艺品搭配性更强,一个空间同时具备用餐喝茶休闲功能。
厨房
效果图

完工实景

厨房用玻璃墙,既能保留自然光,还能让中厨的油烟减少对客餐厅的腐蚀,减少外凸吧台让走动更流畅。内部吧台做大,一两个人的宵夜刚刚好。
以上就是本期昆明二十四城装饰公司为我们带来的现代风格复式楼装修设计案例了,希望能给您的新房装修设计带来灵感!