在本期昆明德雕装饰公司为我们带来的110平精装房改造案例中,设计师采用用淡淡的米黄色乳胶漆,整体看起来特别的温馨,阳光洒进白色的梦幻帘,焦糖色的天鹅绒沙发温暖了整个空间。
原始户型图

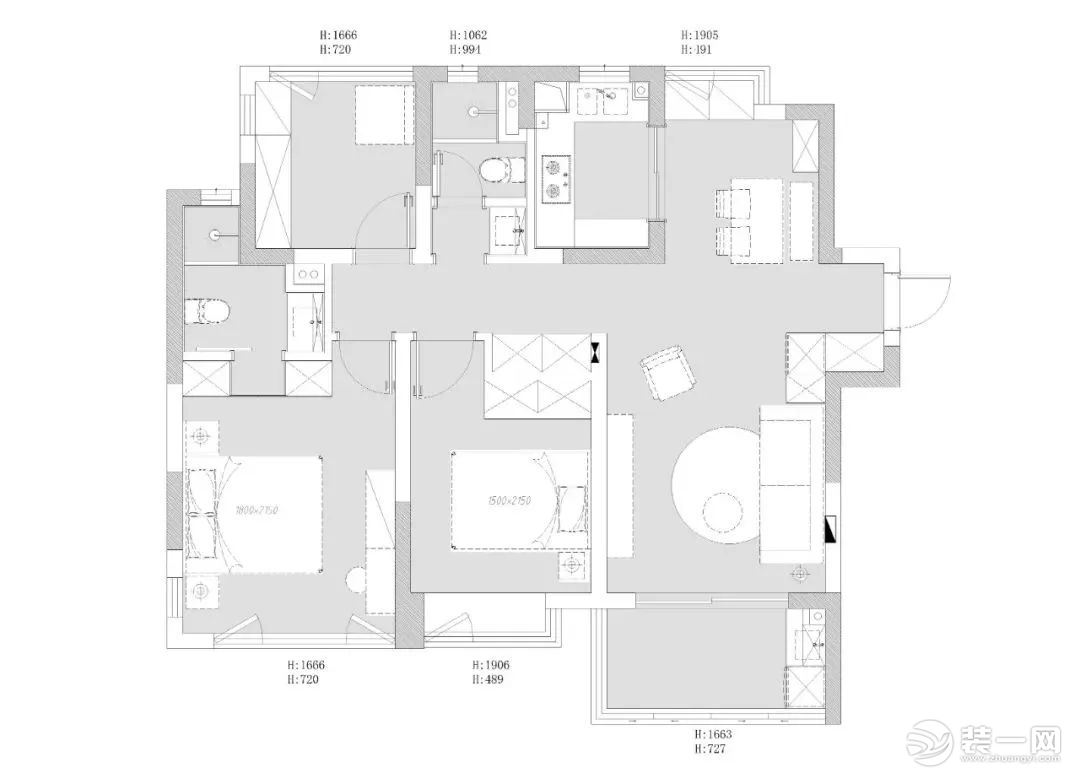
平面布置图

客厅
全屋乳胶漆用的淡淡的米黄色特别的温馨,质感氛围也拉满。阳光洒进白色的梦幻帘,焦糖色的天鹅绒沙发温暖了整个空间。地面米色短绒地毯减弱了原来的地面深棕色,搭配浅卡其的麂皮绒沙发,同色系的搭配,温暖柔和又不失优雅气质。

从过道处看门厅及客厅,猪肝红的进户门被刷成了卡其粉色,冰箱嵌入柜子不再突兀。

餐厅
餐厅里设计师利用飘窗做成了餐边柜,把原来的鸡肋空间转变成实用的储物加可操作台面。

过道尽头简单的端景布置,别具意境。

阳台
阳台一侧打造阳台柜,冰箱洗衣机嵌入柜体,设置洗衣池,也有充足的收纳,实用满分。

卧室
主卧运用樱桃木藤编实木床搭配米色棉麻的纹理,质朴简单的陈设,温馨的色调是每一天下班后最美的期待,也是心灵深处最好的抚慰。

南向最大的卧室作为父母房,棕黄色的皮质软包靠背大床为整个空间定下了温暖舒适的调子。

杏灰色的柜门中间两扇后面是主卫空间,从美观和整体性考虑,把原来的卫生间门拆除后做成了柜门形式的隐形门。

以上就是本期昆明德雕装饰公司为大家带来的110平精装房改造案例的全部内容分享了,希望能给您的新房装修改造带来帮助!