项目介绍:合肥融侨悦城140㎡大气欧式装修效果图
设计师:合肥生活家装修公司首席设计师张跃
设计说明:业主是一对比较时尚的夫妻,事业也比较成功,经济条件相对较好,对于家居生活的品质有一定的要求。因此设计师将本次设计思路归纳为三个关键词:雅致、舒适、时尚。
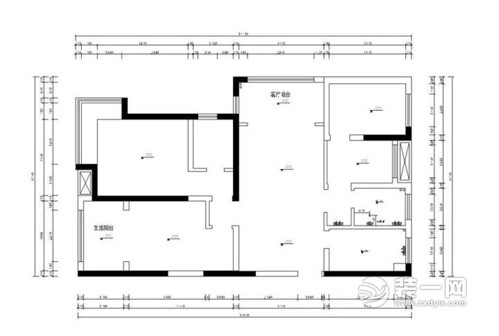
在改造的过程中,采用微改动的方式,保持原有格局的基础之上,在餐厅酒柜区域进行了调整,加设了一组酒柜的位置。因为全屋有独立的大阳台,所以对客厅区域的阳台进行拆除,把客厅的面积进行了扩大。

设计师

户型图

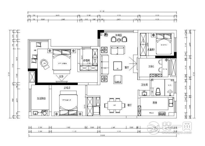
布置方案


客厅
客厅不只是豪华大气,更表现了一种惬意和浪漫。通过完美的典线,欧式精美的家居配饰,以及用心打磨的细节处理,带给家人不尽的舒服触感,整个空间彰显了和谐才是欧式风格的最高境界。

餐厅
餐厅特制的餐边柜拉起了整个空间的西式格调,欧式的酒柜文化得以彰显,同时兼具良好的收纳功能。大气的圆形餐桌,无论是家用还是会客都会物尽其用,上方精美的水晶吊灯,让人有一种欧式宫廷的穿越感。

主卧
主卧一改客餐厅区域的奢华,以温馨现代的基调为主,更偏向于现代简欧的风格,让整个休憩空间更轻松,抛却浓墨重彩,回归清淡本真。

儿童房
女儿房的设计,合肥生活家装修公司设计师利用浓郁可爱的清新风,让整个童年都能够在萌萌哒的气氛中健康成长,床头的壁画和配饰的选用都良好的烘托了这一主题。