项目:信地藏龙阁12#06
户型面积:140平方
承包方式:半包+部分主材
工程造价:半包7万+主材6万
软装配饰:业主自购+公司软配
设计师:张海洋
装饰公司:合肥华迪装修公司
设计思路:
1.平面分析户型阶段
2.客户需求定位
3.空间色彩风格匹配

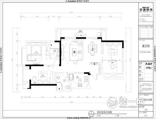
平面户型分析:
本案户型优点是南北通透且采光极佳,比较宽的景观阳台。不足之处,朝北卧室空间较小,客卫与厨房面积比例不合理。入户缺少私密性,客厅餐厅与其他空间动线交叉过多,入户储物空间较小。整体储物量偏小。

解决方案:
1.入户增加玄关+储物鞋柜
2.朝北两个卧室整合儿子卧室+书房
3.调整客卫和厨房空间大小,增加实用空间。
4.利用南阳台赠送面积增加储物空间。
效果图展示:

思路:入户处理是设计关键,玄关的功能是增加空间私密性,增加储物空间。同时也要考虑的采光空间的通透。隔断造型借鉴中式景观借景布局方式,含蓄,内敛。青花瓷配上跳舞兰,寓意平安,朝气。



思路:客餐厅相连,整体感很强,两个窗户利用整体大的落地窗帘,显得特别大气。白色茶几、白色餐桌餐椅。白色电视柜和酒柜和白色吊顶相呼应;米黄色沙发和地面瓷砖拼花相呼应。整体风格是简约欧式,设计师注重细节的处理,对称的布局。用梅花窗元素贯穿在整体空间中。


思路:卧室以简洁温馨为主,没有太过多余的装饰。大的飘窗台做出休闲+功能区。上面可以坐着喝喝茶下下棋,下面做成储物的空间。
实景展示:

本案设计师——张海洋简介:

华迪装饰首席设计师张海洋
设计师:张海洋
职位:首席设计师
所属公司:合肥华迪装饰工程有限公司
工作年限:10年
毕业院校合肥林业学院
专业:装潢艺术设计专业
设计理念:设计改变生活,设计源于生活
技能证书:国家注册室内设计师资质证书
个人案例:海亮兰郡,宝利丰广场,玫瑰园,长安天玺,圣地亚哥,琥珀五环城,中海原山,内森庄园,银杏上郡,滨湖日月名邸,藏龙阁等
获奖:
2013年荣获安徽省优秀设计师
2014年度中国十佳住宅设计师
2015年蓝点室内设计大赛入围奖
2017年设计沙龙一等奖
本套案例由合肥华迪装修公司张海洋老师倾力打造,喜欢的朋友可以预约设计!