地址:恒润首府 装修价格:16.6万
建筑面积:137㎡
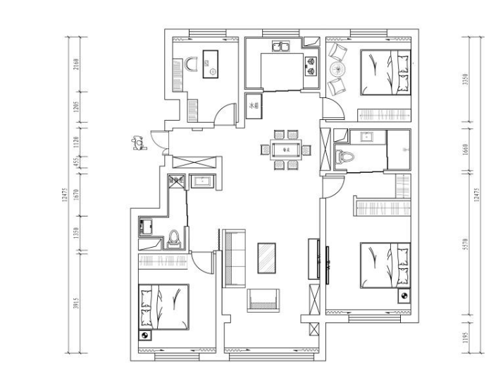
户型:平层
设计师:彭兰
装修风格:港式
装修方式:基+主+柜子
设计说明:本案为137㎡四室两厅的户型,从布置图中可见,在设计时基本按照原始户型的布局来进行设计,对其改动并不大,其中客厅背面的卧室改动较为精心,将原始沙发背景墙体拆除部分,与卧室平齐,这样可以将厕所改成推拉门,将原本过道狭窄的劣势变为优势。
平面设计方案:
客餐厅:选用沉稳大气的黑色作为主色调,搭配白色茶几灰色墙面来冲淡黑色沙发带来的沉闷感,而电视背景墙并没有多么复杂的设计,仅选用地台+吊柜的组合来营造港式氛围。

餐厅:餐厅与玄关区设计时更加倾向精致与实用,餐厅黑色吊灯有种简约的美感,非常符合下方餐桌椅的风格走向,而配饰方面多选用精致的饰品进行装饰。

卫生间:整体选用洁净的白色作为主基色,搭配金色边框吊柜可以营造出轻奢的感觉,并且因户型优势,可以在卫生间内做到干湿分离。
主卧:卧室将原本空间单独隔出一处衣帽间,虽然减少了部分卧室空间,但丰富了卧室内的功能性也很不错,木色地板搭配灰色系床品同样符合港式风格特点。
结语:该设计介于港式的居住环境以及生活的现状而产生影响的设计表现,以黑白灰为基调实现个人对居住环境的要求,简单大气而不失格调。 让人们一回家就感到一种放松和舒适的感觉。
请继续关注宜宾大饰纪装饰,将会为你呈现更多精彩案例。