阳泉装修公司 [切换城市]
设计456欢迎您!
您的位置: 阳泉装修> 铭居装饰> 动态详情

【阳泉铭居装饰】140平的现代简约风三居室装修案例分享

06-25
【导读】今天分享一套140平的现代简约三居室案例给大家,这套房子整体的颜色搭配非常的素雅,但也让人感觉非常的高级,各种壁画、背景墙和细节上的设计,都让这套房子给人一种高级的感觉,一起来看看这套房子具体是什么样的吧!

今天阳泉铭居装饰分享一套140平的现代简约三居室案例给大家,这套房子整体的颜色搭配非常的素雅,但也让人感觉非常的高级,各种壁画、背景墙和细节上的设计,都让这套房子给人一种高级的感觉,一起来看看这套房子具体是什么样的吧!

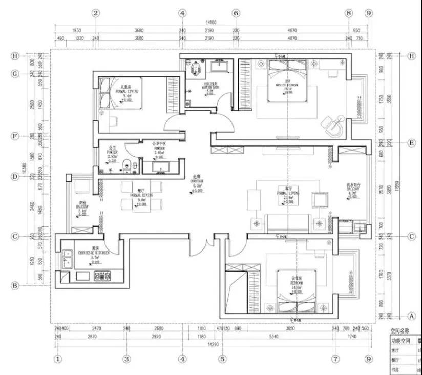
平面布置图

入户就是客餐厅的户型,整体选择了灰色系作为主调,给人的感觉就是格外的素雅,却也显得非常的高级。

客厅是正常的沙发、茶几、电视柜的摆设,搭配挂画和地毯,整体风格非常统一,让人看起来更加舒服。

餐厅在玄关的另一侧,连着一个小阳台,业主把冰箱放在了小阳台上,为了避免阳光的照射,还装了纱帘。

以黑色为主体的厨房橱柜,和墙地面区分开,营造出一个黑色的高级空间感,可以提高厨房的耐观性,也更不容易显脏

主卧可以说是非常的宽敞,嵌入式的衣柜和书桌都非常实用。黑色、灰色和原木色构成多个层次,让主卧更加时尚。

主卫没有做干湿分离,但是把蹲厕位置抬高了,也用不同的瓷砖来划分空间。蹲厕位还做了一个扶手,方便老人使用。

次卧是给父母准备的房间,所以整体色调会更加质朴,背景墙用雪天白雪杨的壁纸,和整个房间特别搭。

儿童房同样用了雪白+雾气杨洒的森林壁纸,把床靠着窗户摆放,这样可以留出更多的活动空间,给孩子玩耍。

次卫的空间会比较小,因为洗手台被放在了门外。在次卫的墙上还留下了一个活动的凳子,方便小孩和老人使用。

以上是今天小编给大家带来的案例分享,更多装修案例以及装修攻略可进入【阳泉铭居装饰】店铺详细查看。


分享到:
点赞 2715 收藏
免费服务
信息将被严格保密,《隐私保护条例

今日已有221位业主免费获取到报价清单

铭居装饰

地  址: 阳泉市经济技术开发区日昱红街四铭居装饰

电  话: 13935342776

联系人: 冀先生

相关推荐
阳泉信誉好的装修公司阳泉口碑好的装修公司阳泉可靠的装修公司阳泉经济实惠的装修公司阳泉知名装修公司阳泉靠谱的装修公司阳泉实力强的装修公司阳泉性价比高的装修公司阳泉装修公司排名
1

免费申请
装修服务

2

客服回访
确认需求

3

三份报价
方案 P K

4

享第三方
装修保障

您的信息将被严格保密,《隐私保护条例

今天已有526位业主预约了免费精准报价