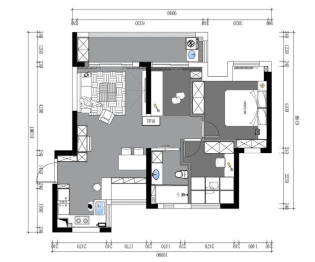
本期芜湖非凡装饰给大家分享的是一套90㎡的装修案例,整个空间采取现代简约风格的设计,低调舒适的灰色调、加上合理的空间布置,还有一些鲜艳色彩的,设计出了一个轻松惬意、活泼优雅的居住空间,让生活充满从容不迫的体验。

过道
过道位置定制一个收纳柜,冰箱嵌入在柜体里面,整体设计简洁又实用。

餐厅
餐厅与客厅空间互通,风格保持一致,深灰色的墙面,布置深色实木餐桌,带来一种沉稳端庄的用餐氛围感。


厨房
厨房深灰色的仿大理石墙面地面砖,加上现代简雅的橱柜定制与白色的操作台面,还有嵌入电器柜的设计,U字形的操作台空间布置,在开放式的空间下,带来了一个轻松舒适的烹饪氛围。

客厅
客厅整体现代风的装修氛围,蓝灰色的沙发墙+灰色布艺沙发;地面铺设紫灰色的地毯,搭配双拼圆的茶几组合,显得简洁朴素而舒适;电视墙以底部大理石+墙身长城板的组合,布置上实木电视柜与壁挂电视机,也充满了自然舒适的高级感。

主卧
卧室鲜蓝色的乳胶漆墙面,搭配灰色的床铺与床单,使得卧室显得简约清新而又有活力感。

书房
书房是个半开放的空间,与过道之间就隔着卷帘,里面悬空安装书桌,搭配简雅的办公椅,为主人提供了一个宽松舒适的工作加班与阅读的空间。

卫生间
卫生间以灰色墙面地面砖+白色浴室柜的组合,加上黑色的拉手,带来一种简洁实用的黑白灰设计感,布置浴缸、壁龛与收纳柜的卫生间,也实现了情趣优雅而实用的生活体验。

以上就是关于现代简约装修案例的相关内容介绍,希望能够对大家有所帮助。如果想要了解更多的装修资讯,请点击关注芜湖非凡装饰
下一篇: 没有啦
免费申请
装修服务
客服回访
确认需求
三份报价
方案 P K
享第三方
装修保障