太原装修公司 [切换城市]
设计456欢迎您!
您的位置: 太原装修> 朗艺装饰> 动态详情

[太原朗艺装饰]复式装修案例,打造出轻松、惬意的居住空间

12-28
【导读】今天分享的是一套单层建筑面积106平的复式装修案例,房子的每个空间都规划得非常好,在整体简洁的硬装基础上,加入了优雅华丽的软装和一些时尚年轻的元素,来营造出这样一个轻松、惬意的居住空间。下面就和朗艺装饰公司的小编一起来看看吧。

今天分享的是一套单层建筑面积106平的复式装修案例,房子的每个空间都规划得非常好,在整体简洁的硬装基础上,加入了优雅华丽的软装和一些时尚年轻的元素,来营造出这样一个轻松、惬意的居住空间。下面就和朗艺装饰公司的小编一起来看看吧。

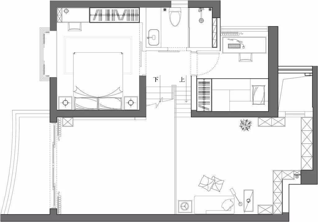
一层平面布置图

二层平面布置图

入户的玄关处做了嵌入式的鞋柜,把玄关和厨房给分开。蓝灰色的背景墙搭配白色的踢脚线和灰色的地砖,整体的配色清新而又轻松。

走过玄关到了餐厅空间,白色大理石和黑色铁艺的结合很有现代风的时尚感。顶部的吊灯加入金属元素,更加奢华精致。侧方做上餐边柜,冰箱也嵌入了柜子当中。

厨房和餐厅之间加上黑框的玻璃推拉门作为隔断,避免油烟又能保证光线的流通。把厨房的电器嵌入了橱柜当中,看起来更为整洁一些。

在餐厅的另一侧就是客厅空间了,客厅处做了挑高的设计,搭配通往阳台的推拉门,整个空间看起来非常的大气和宽敞,整体的配色轻松而又舒适。

客厅的电视背景墙是直接用了白色的大理石瓷砖,底部加上蓝灰色的电视柜,和沙发背景墙相互呼应,简洁大方的大理石百看不腻。

通往二楼的楼梯选择了玻璃作为扶手,搭配灰色调的踏步和白色的墙面,整个空间看起来非常简约,顶部做叠级吊顶,加强层次感。

主卧的床头背景墙刷成了蓝色,搭配一幅创意的装饰画,两侧的灯具选择了台灯和吊灯的组合,同样加入了金属元素,看起来更为优雅。

次卧,选择白色,灰色的床加上蓝绿色的床品更显清新。金属质感的茶几和灯具结合在了一起,显得更为华丽和有趣。

卫生间内部是做了干湿分离的设计,洗手台的下方留空方便塞下一些零碎物品,上方做个镜柜,让卫生间看起来更加宽敞,又能多出储物空间。

以上就是关于本期106平复式装修案例的相关内容分享,希望大家喜欢这样的装修设计。如果想要了解更多的装修设计案例,请点击关注太原朗艺装饰


分享到:
点赞 1897 收藏
免费服务
信息将被严格保密,《隐私保护条例

今日已有221位业主免费获取到报价清单

朗艺装饰

地  址: 山西太原市尖草坪区漪兴路1号楼301

相关推荐
太原火锅店装修公司哪家好太原装修公司十强太原软装装修公司有哪些太原超市装修设计公司排名太原学校装修设计公司排名太原比较好的装饰公司太原网咖装修设计公司排名太原晋源区装修公司有哪些太原商铺装修设计公司排名太原奶茶店装修公司哪家好
1

免费申请
装修服务

2

客服回访
确认需求

3

三份报价
方案 P K

4

享第三方
装修保障

您的信息将被严格保密,《隐私保护条例

今天已有526位业主预约了免费精准报价