青岛装修公司 [切换城市]
设计456欢迎您!
您的位置: 青岛装修> 青岛尚正装饰> 动态详情

[青岛尚正装饰]北欧与现代风相结合,客厅的挂画很文艺!

11-18
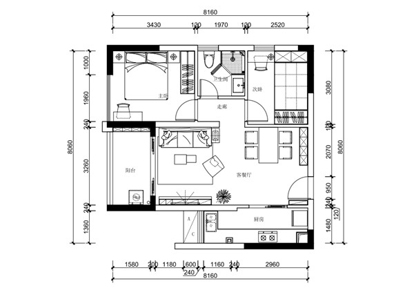
【导读】这是一套建筑面积68平米的小户型二居室案例,设计师将入户的玄关走廊和餐厨之间做上玻璃隔断门,在玄关一侧做到顶的鞋柜,鞋柜的底部留空,方便摆放日常更换的鞋子,在玄关门和卧室门之间加上了隔断。

这是一套建筑面积68平米的小户型二居室案例,设计师将入户的玄关走廊和餐厨之间做上玻璃隔断门,在玄关一侧做到顶的鞋柜,鞋柜的底部留空,方便摆放日常更换的鞋子,在玄关门和卧室门之间加上了隔断。

整个空间以现代风格融合北欧风格,把简约舒适和清新文艺给结合在一起,在成熟的空间内加入一些轻盈的元素,构造出了这样一个独特端庄的居住氛围。

入户的玄关走廊和餐厨之间做上玻璃隔断门,在玄关一侧做到顶的鞋柜,鞋柜的底部留空,方便摆放日常更换的鞋子。

在玄关走廊的另一侧就是客厅空间了,墙面选择了刷成灰色调,电视背景墙上用瓷盘作为装点,复古的木色家具让客厅更有文艺范。

沙发背景墙上做了照片墙的设计,侧方还留出一部分做个柜子,增强客厅的储物能力。绿色带有花纹的窗帘,给客厅带来了一丝自然感。

厨房的橱柜是做了L形的布局,在餐厅的边上也还有着餐边柜,所以整个厨房的储物空间是非常充足的,再加上两侧的窗户,采光也很好。

餐厅和厨房结合在一起,让空间变得更为宽敞一些。原木风的餐桌椅加上灰色调的地砖,营造出轻松、舒适的感觉。

主卧室同样选择了灰色调的设计,蓝色的床品和绿色的靠背,带来别致的感受。一个L形的小飘窗,也给卧室带来了更多的情调感。

儿童房是选择了铁艺床搭配衣柜和书桌的组合式设计,铁艺床的款式轻便,在衣柜边上布置书桌,也方便孩子平时学习做作业。

卫生间内部做了干湿分离的设计,淋浴房内加上壁龛,马桶后方做个架子,虽然面积小,也不缺收纳空间。马桶区域还铺贴了创意的彩色六边小砖,看起来非常美观。

阳台被利用起来改成了洗衣房,洗手台加上洗衣机和吊柜的组合,把洗衣机藏在柜子里面,外观看起来更有整体感,也避免了长期被日晒的问题。

整体以灰色的墙地面来搭配白色的门,让整个小空间看起来也更为明亮、舒适。

以上就是小编分享的装修案例,希望对大家有所帮助。想要了解更多装修资讯,敬请关注>青岛尚正装饰,还可免费预约为您设计适合你的装修方案。


分享到:
点赞 873 收藏
免费服务
信息将被严格保密,《隐私保护条例

今日已有221位业主免费获取到报价清单

青岛尚正装饰

地  址: 山东省青岛市九水东路60-76号网点尚正宅配

相关推荐
青岛酒吧装修设计公司排名青岛办公楼装修设计公司排名青岛比较出名的家装公司青岛餐饮店装修公司哪家好青岛咖啡厅装修设计公司排名青岛饭店装修公司哪家好青岛商铺装修公司哪家好青岛宾馆装修设计公司排名青岛网吧装修设计公司排名青岛厂房装修公司哪家好
1

免费申请
装修服务

2

客服回访
确认需求

3

三份报价
方案 P K

4

享第三方
装修保障

您的信息将被严格保密,《隐私保护条例

今天已有526位业主预约了免费精准报价