这套建筑面积270㎡的跃层是男业主18年底买下来的,至今也有将近3年的时间,终于给四口之家圆了梦想,因为这是通过自己的双手没有昼夜的奋斗出来的结果,下面就和陶师傅装饰公司一起来欣赏欣赏吧。
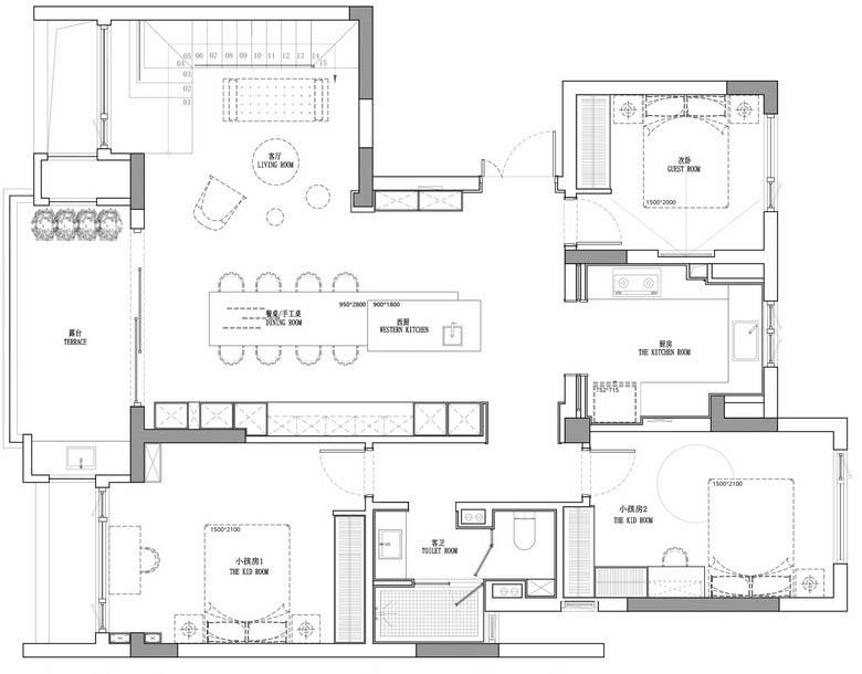
一层平面布置图
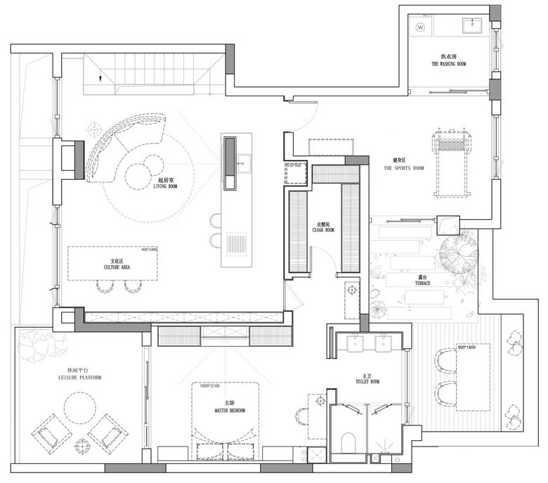
二层平面图
二层平面布置图
刚开始拿到房子钥匙后,发现楼梯位置直接让我无言以对,因为楼梯的位置将整个空间一分为二,不仅影响使用,而且从采光方面也存在一定的影响,前期通过与设计师多次沟通后,最终终于解决了这样的尴尬的局面,不仅解决了采光方面的问题,同时还让我们全家人就餐氛围变得更加浓烈。

一层以会客区为主。
刚开始和设计师计划把一楼的阳台包裹进客餐厅内,但是物业反对,只好设计成半露台的样式了,一楼预留出很充足的社交开放空间,楼上作为自己和家人私密的空间。



我和妻子从采光方面上要求十分高,喜欢那种一起床打开窗户阳光就能照射进来温暖整个房屋的,于是听取和采纳了设计师的建议,将楼梯移至到了靠墙的位置,选择悬浮式楼梯来解决这样的问题,整体花了5万多,回想起来有些奢华,但是是我和妻子想要的效果。


因为是顶跃的户型,一楼的餐厅和客厅都是挑空的,悬浮式楼梯能够让跃层空间变得更加通透和舒适,这样也能满足我和家人的需求,解决全屋黯淡无光的效果。

餐厅区域还是比较理想,考虑了岛台的设计,餐边柜柜体选择黑胡桃木色,柜门选择白色,让整体空间变得更加有层次感,同时也比较高级、时尚。
顶面的吊顶是用木饰面材质的,没有考虑石膏板与乳胶漆的组合设计,顶面开槽提前预留灯槽,洗墙灯带,发出暖黄色的灯光,让室内空间变得更加有层次。
儿子的房间从设计上以简单为主,考虑到儿子房间面积不大理想,所以舍弃了原来比较花里胡哨的设计,简单大方给孩子营造一个自我发挥的空间,这样父母也觉得内心比较放心和满意。








主卧室床头背景墙考虑木饰面板上的设计,床头内深20公分,实现地台式的双人床设计。


卫生间浴室柜考虑了两个,结合着酒店的设计,满足全家人使用,这样不仅解决了早晨洗漱的高峰期,同时也比较经济实用。
以上就是关于270㎡跃层设计案例的全部内容介绍,希望能够对大家有所帮助。如果想要了解更多的装修知识,请点击关注陶师傅装饰公司。
免费申请
装修服务
客服回访
确认需求
三份报价
方案 P K
享第三方
装修保障