淮南装修公司 [切换城市]
设计456欢迎您!
您的位置: 淮南装修> 淮南名鼎世家装饰> 动态详情

[淮南名鼎世家装饰]65平原木风小户型装修案例,精致简约又大气

09-23
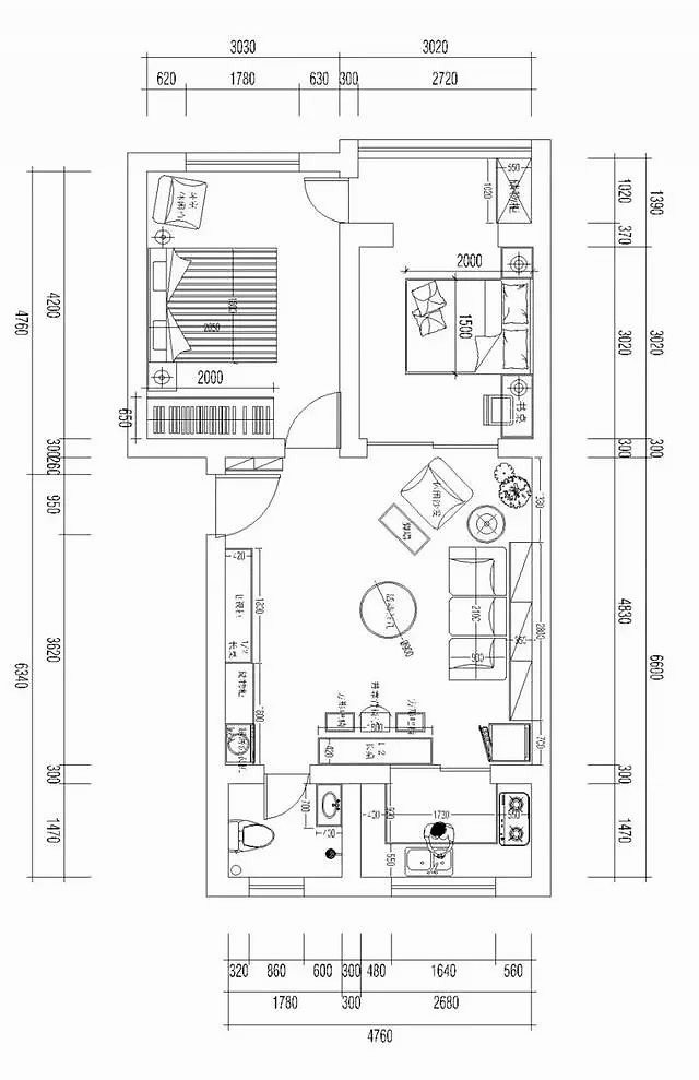
【导读】本案是一套面积65㎡的原木风小户型二居室,设计师通过简单的原木色与黑色、白色来构造这样一个舒适、简约的空间,让人感觉精致而又大方。下面就和淮南名鼎世家装饰公司的小编一起来欣赏欣赏吧。

本案是一套面积65㎡的原木风小户型二居室,设计师通过简单的原木色与黑色、白色来构造这样一个舒适、简约的空间,让人感觉精致而又大方。下面就和淮南名鼎世家装饰公司的小编一起来欣赏欣赏吧。

进门就是客厅,客厅位于两间卧室和厨房、卫生间中间,沙发背景墙被改成了柜子,冰箱也被嵌入了其中。原木色的地板与布艺沙发相搭配,给人一种温馨舒适之感。沙发背景墙是一面储物柜,干净素雅。

沙发靠近次卧的角落里是摆放了绿植作为点缀,搭配这款非常有禅意的单椅,让人感觉格外的舒适、自然。木质的推拉移门并不是全封闭的,不会带给人压抑之感。

在客厅的另一侧是厨房和卫生间,厨房处用了黑框的玻璃门作为装饰,卫生间也是选择了黑色的门,黑白色的搭配让客厅空间更加时尚。

鞋柜被放在了靠近卫生间的这一侧,到顶的白色鞋柜还把洗衣机也嵌入了其中,原木风的电视柜搭配一个小桌子构成了电视背景墙的全部。

卫生间和厨房之间的墙面也摆放着一张小书桌,同时也是屋主一家人平时吃饭用的餐桌,靠着墙面摆放会更省空间,走道也更加宽敞。

如果有客人来了,就可以把这张书桌和电视柜上方的小桌子合并起来,搭配折叠款的小凳子,作为餐桌实用,茶几和电视柜中间的空间也是刚刚好。

次卧的设计非常简约,原木色和白色就是全部的配色,用书桌来代替床头柜,更加实用。格栅门作为次卧和客厅的隔断,非常好看。

主卧同样在极简的空间基础下,床头摆了一个展示架作为床头柜,同时摆了一张懒人沙发,在闲暇之余,可以躺着看书玩手机。

以上就是关于本期65平原木风小户型装修案例的相关内容分享了,希望大家能够喜欢这样的设计方案。如需了解更多的装修设计方案,请点击关注淮南名鼎世家装饰


分享到:
点赞 2373 收藏
免费服务
信息将被严格保密,《隐私保护条例

今日已有221位业主免费获取到报价清单

淮南名鼎世家装饰

地  址: 淮南市朝阳东路金地国际城30号楼113-115商铺(上岛咖啡东侧)

相关推荐
淮南性价比高的装修公司淮南实力强的装修公司淮南装修公司排名淮南知名装修公司淮南装修公司哪家好淮南经济实惠的装修公司淮南靠谱的装修公司淮南信誉好的装修公司淮南可靠的装修公司
1

免费申请
装修服务

2

客服回访
确认需求

3

三份报价
方案 P K

4

享第三方
装修保障

您的信息将被严格保密,《隐私保护条例

今天已有526位业主预约了免费精准报价