海口装修公司 [切换城市]
设计456欢迎您!
您的位置: 海口装修> 海南匠筑装饰集团有限公司> 动态详情

海口房屋装修设计-高端设计-样板间参观-海口匠筑装饰-中信台达国际别墅

08-03
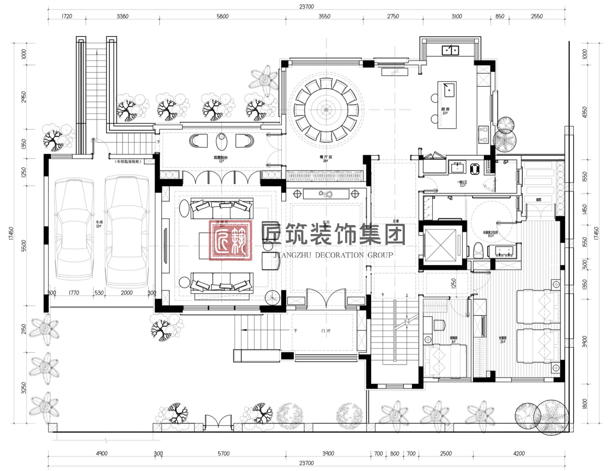
【导读】本案是客户委托设计全屋的外立面和内部空间设计,业主购买这里作为海南度假的一个落脚点,主要是父母冬季过来度假休闲。所以装修一些需要主要以功能性为主。



分享到:
点赞 711 收藏

上一篇: 没有啦

下一篇: 没有啦

免费服务
信息将被严格保密,《隐私保护条例

今日已有221位业主免费获取到报价清单

海南匠筑装饰集团有限公司

地  址: 海南省海口市龙华区海垦街道海瑞后路19号匠筑装饰集团

相关推荐
海口美兰区装修公司有哪些海口写字楼装修设计公司排名海口火锅店装修公司哪家好海口商场装修设计公司排名海口母婴店装修公司哪家好海口美发店装修设计公司排名海口店铺装修公司哪家好海口学校装修设计公司排名海口靠谱的装修公司海口展馆装修设计公司排名
1

免费申请
装修服务

2

客服回访
确认需求

3

三份报价
方案 P K

4

享第三方
装修保障

您的信息将被严格保密,《隐私保护条例

今天已有526位业主预约了免费精准报价