设计理念: 设计理念:兰乔圣菲是一套500㎡复式,项目以北欧的居家风格,搭配与之有关的自然元素而成的装饰环境,给予了这个项目最舒适真实的写照。北欧风最大的特点就是运用了朴素的色彩、简约的家具、流畅的线条,让空间的每一处都呈现出一种自然与舒适,“少即是多”的设计手法,在这里也体现得淋漓尽致。 设计理念:兰乔圣菲是一套500㎡复式,项目以北欧的居家风格,搭配与之有关的自然元素而成的装饰环境,给予了这个项目最舒适真实的写照。北欧风最大的特点就是运用了朴素的色彩、简约的家具、流畅的线条,让空间的每一处都呈现出一种自然与舒适,“少即是多”的设计手法,在这里也体现得淋漓尽致。
详情万科兰乔圣菲500平米欧式别墅客厅装修设计效果图
万科兰乔圣菲500平米欧式别墅餐厅装修设计效果图
万科兰乔圣菲500平米欧式别墅吊顶装修设计效果图
万科兰乔圣菲500平米欧式别墅高低床装修设计效果图
万科兰乔圣菲500平米欧式别墅卧室装修设计效果图
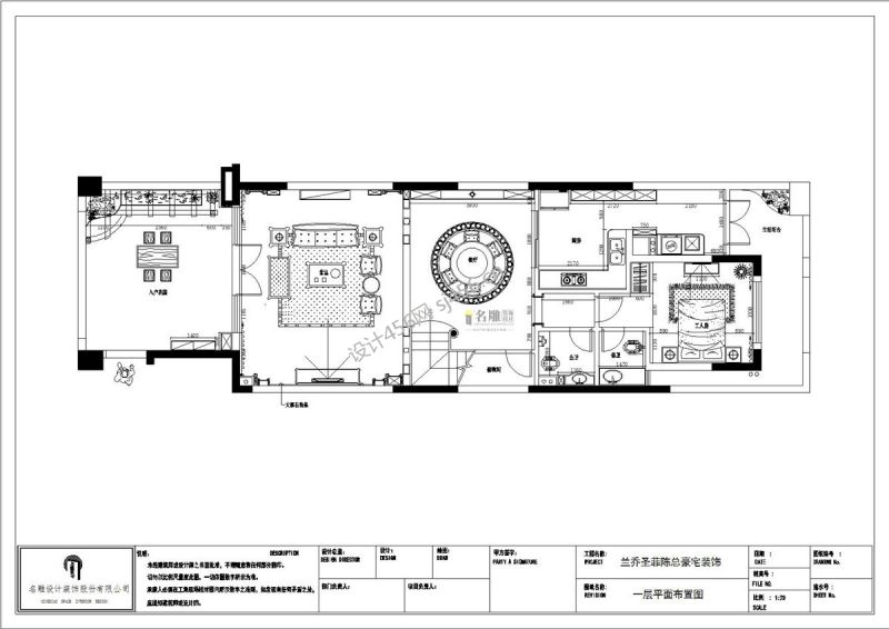
万科兰乔圣菲500平米欧式别墅平面图
上一篇: 樵山明珠-北欧风格-四居室
下一篇: 万科金域蓝湾-现代时尚风格-四居室
免费申请
装修服务
客服回访
确认需求
三份报价
方案 P K
享第三方
装修保障