滁州装修公司 [切换城市]
设计456欢迎您!
您的位置: 滁州装修> 滁州久米装饰> 动态详情

【滁州久米装饰】黑与白的沉稳,是现代感的时尚

09-09
【导读】生活就是这样,脚长在自己身上,往前走就对了,直到向往的风景,变成走过的地方。

生活就是这样,脚长在自己身上,往前走就对了,直到向往的风景,变成走过的地方。

■项目地址:南台府 ■设计主创:宋坤 ■建筑面积:270 ■设计风格:现代简约 ■设计单位:久米装饰

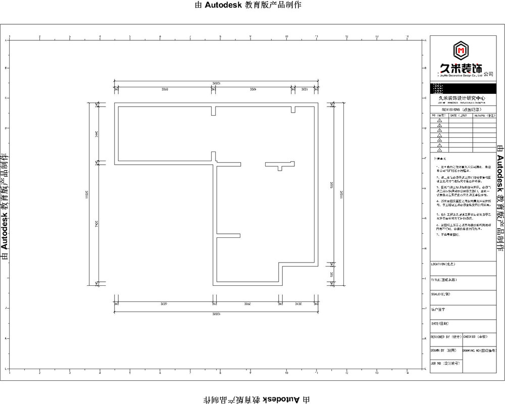
户型原始图

▲地下室

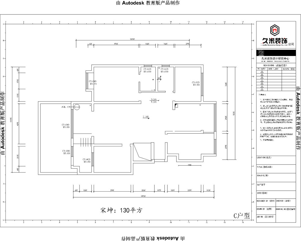
▲一楼

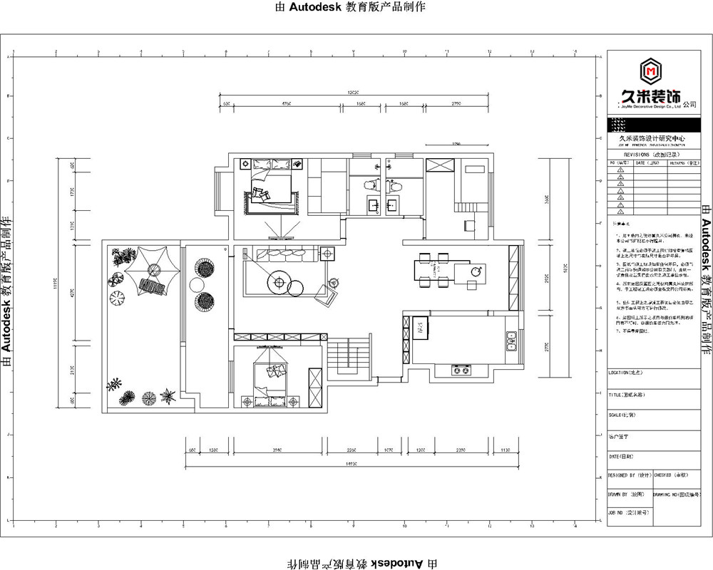
平面布置图

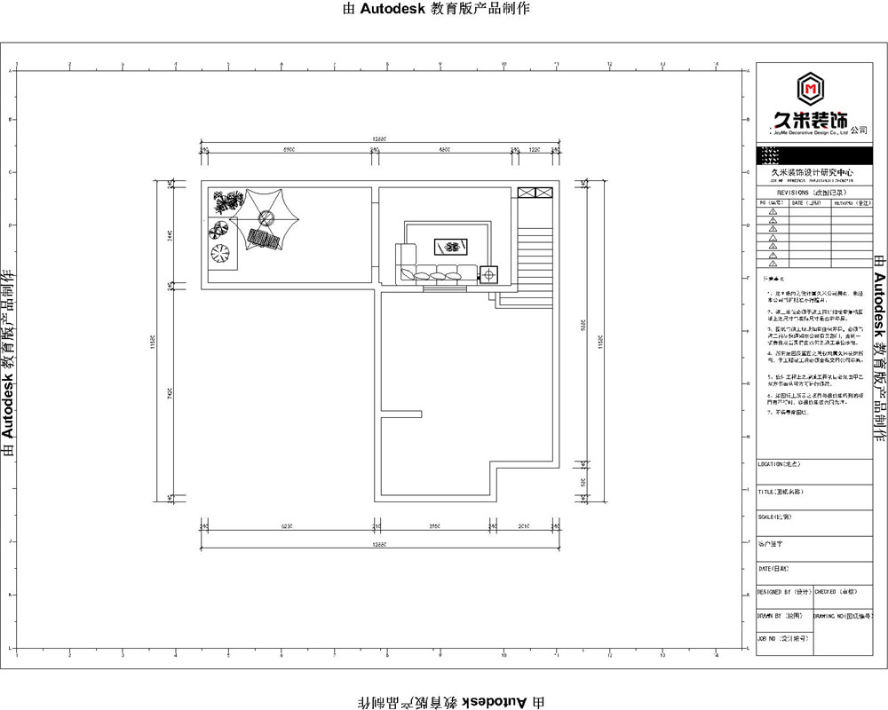
▲地下室一层

▲地下室两层

▲一楼 本案是270平四室的房子,且带有两层地下室。整体结构不做大改动,在了解了屋主的生活习惯和居住需求后对空间进行了功能划分和布局。

客厅

整体采用黑白色调,简约大方,拥有现代感的沉稳。穿插的棕色又不让空间显得单调,光线充足明亮又通透。

摆件充满了时尚感, 从中可以窥见屋主对生活的追求。简约不简单的白色大理石背景墙和灰色地毯相呼应,构成一副质感的画面。

客厅过道非常宽敞,提供了自由活动的空间,淡灰色大理石地面耐看又舒服。

厨房&餐厅

厨房的设计比较注重实用性,没有过多的装饰,洗手台和餐桌相连在一起方便了一日三餐,增加了空间的利用率。


分享到:
点赞 1244 收藏
免费服务
信息将被严格保密,《隐私保护条例

今日已有221位业主免费获取到报价清单

滁州久米装饰

地  址:

电  话: 15695508002

联系人: 陶经理

相关推荐
滁州靠谱的装修公司滁州口碑好的装修公司滁州信誉好的装修公司滁州经济实惠的装修公司滁州装修公司哪家好滁州实力强的装修公司滁州可靠的装修公司滁州装修公司排名
1

免费申请
装修服务

2

客服回访
确认需求

3

三份报价
方案 P K

4

享第三方
装修保障

您的信息将被严格保密,《隐私保护条例

今天已有526位业主预约了免费精准报价