水是眼波横,山是眉峰聚
■项目地址:珑玺台 ■设计主创:方向 ■建筑面积:400平 ■设计风格:中式 ■设计单位:久米装饰
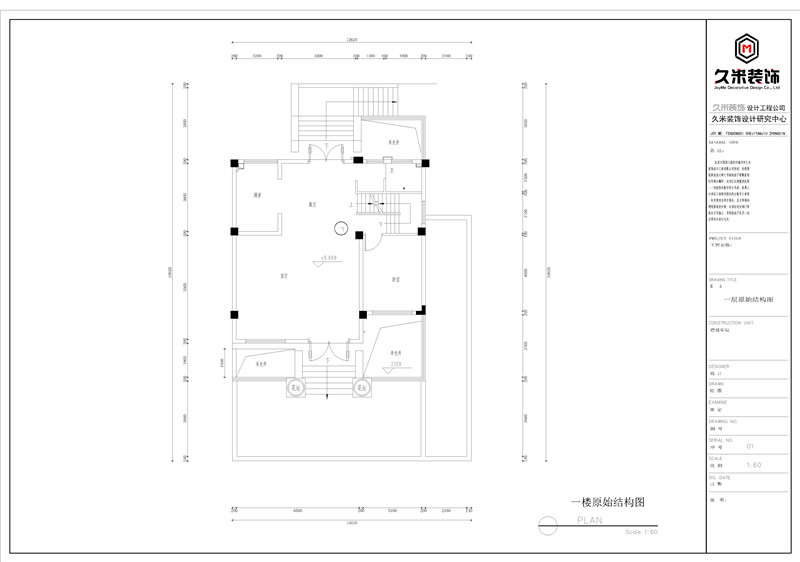
原始户型图
负一楼
一楼
二楼
三楼
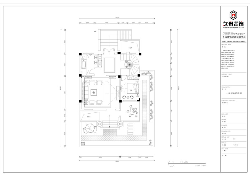
平面布置图
负一楼
一楼
二楼
三楼
本案是四层别墅,包含负一楼、一楼院子和露天阳台,共400平。 我们根据屋主的需求设计了新中式的风格, 并根据屋主的家庭情况、生活习惯等方面对每层楼的空间布局进行了合理的安排。
色彩定位
本案整体采用沉稳的深棕色和干净的白色为主题, 客厅另外加了浓郁的绿色增添了一丝活力和灵动。
玄 关&楼 梯

玄关处有很大一片空间,实木家具和光滑的大理石体现了中式的味道, 镜子和精心摆放的盆栽则显示出不一般的风水原理。
楼梯处采用高级灰大理石,宽敞明亮。
客 厅

白绿棕恰到好处的呼应,古色古香的沙发桌椅仿佛带人回到古代的时光, 背景墙上明黄色壁花柔和了氛围,使得整个空间不会过于沉稳。
餐 厅

开放式餐厅采用了传统的圆式桌椅,巨大的吊灯散发出古典的气息,家居线条圆润流畅。
餐桌旁边有一处吧台,可以供人休闲聊天,过道尽头的背景墙在灯光的烘托下显得立体高雅。
书 房
三楼过道处是书房,占据了整面墙的书柜有很大空间可以供摆放,简约又有气质。
卧 室

二楼卧室采用深棕色的经典家具,山水墨画尽显古色古香,内敛低调。
电视背景墙将整个空间分成两个功能区域,卧室背后是梳洗化妆台和衣柜。

三楼主卧室设计偏向现代风格,深沉的灰蓝色交相对应,黑白格子床套经典百搭。
衣帽间设计得简单又大气,注重实用功能,落地窗让空间光线明亮充足。
卫 生 间


三层的卫生间各不相同,古典和现代各有偏向, 不规则纹理大理石和黑金边框镶嵌的玻璃门设计感十足。
流光千年印古意,四壁浮影悟中采。袅袅熏香絮絮绕,诗词意境自然来。
如需了解更多相关内容请关注滁州久米装饰。
免费申请
装修服务
客服回访
确认需求
三份报价
方案 P K
享第三方
装修保障