主要作品:碧水庄园、春晖园、格拉斯小镇、鲁能七号院别墅、远洋天著、紫金壹号院、金科天玺、云溪别墅、龙湖好望山庄华堂高尔夫、香江别墅、首创国际半岛别墅、国奥相邻雅居、澳景园、丽春湖、首创禧瑞墅、首开琅樾、景粼原著、云溪别墅、首开缇香郡别墅、西山艺境、香悦四季、兴创荣墅等
所获奖项:
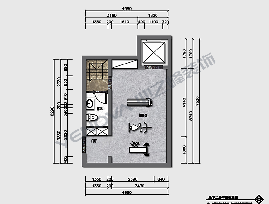
------------------------------------------【首开琅樾户型图】----------------------------------------




小区:首开琅樾
风格:欧式风格
面积:350m2
装修总价:250万
户型:联排别墅

设计理念:
主人对灯光的要求比较重视,所以打造了不同模式的场景。客厅区与壁炉区的摆放方式使整个空间的动线更加流畅。进口墙面壁布的质感体现了空间的品质,餐厅旁大量的嵌柜解决了生活中的各种储藏。也让家人在备餐的同时能够与家人增加沟通与交流。客厅的墙面装饰以石材为主搭配壁炉造型,为整个空间增加了庄重的感觉。而极具特色的软装配饰和蓝色的沙发凳让整个空间的色调更加个性。

整栋房子的点也是采光位置,阳光的照射使得深色调的空间更具有独特性。墙面的壁布和地毯地毯与卧室的床头相呼应,把卧室打造成一个安静个性的空间。沙发凳旁边的落地灯满足了看书时的照明需要。

强烈的动感元素让男主人对健身充满了动力,在健身的同时享受音乐的韵律和节奏。



---------------------------------------------------【设计师履历】--------------------------------------------

首席设计师:陶琳
擅长风格:新古典风格 新中式风格 东南亚风格
从业年数:17年
2002年获得中国室内装饰协会颁发的家装环保设计室证.
2007年北装协高级设计室师.
2007:年获得中国室内设计资格证:高级设计师.
2006年获得中国室内美化家居作品优秀作品奖.
2007年获得第八届中国室内设计大赛优秀作品奖
2011年获得第十二届北京美化家居展览会装饰设计双年展优秀作品奖.
2011年业之峰第十届设计师(峰)采大会
2012年业之峰优秀设计中心一等奖
2013年业之峰第十二届设计师(峰)采大会
2014年意大利筑巢奖
2014年度国际空间设计大奖 艾特奖(最佳别墅设计入围奖)
2015年度国际空间设计大奖 艾特奖(最佳别墅设计金奖)
2015年荣获中国建筑装饰协会“年度杰出设计师”奖
2016中国高端室内设计TOP100称号
2016年荣获筑巢奖亚洲室内设计优秀奖
毕业院校:哈尔滨理工大学环艺系 ,进修于清华美术学院
以上就是 北京汇巢装饰的相关内容,希望可以帮助到你!
免费申请
装修服务
客服回访
确认需求
三份报价
方案 P K
享第三方
装修保障