本文我们主要讲解两种常见的轻质隔墙:轻钢龙骨罩面板隔墙和板材隔墙。
01.
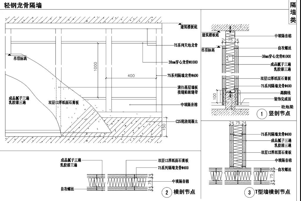
你还记得轻钢龙骨隔墙
的工艺流程吗?
一、材料

龙骨材料:
轻钢龙骨主件有沿顶沿地龙骨、加强龙骨、竖(横)向龙骨、横撑龙骨。
轻钢龙骨配件:
支撑卡、卡托、角托、连接件、固定件、护角条、压缝条等。
天、地龙骨断面类型:(单位:mm)
50*40、75*40、 100*40 、150*40;
竖龙骨断面类型:
48.5*50、73.5*50、98.5*50、148.5*50;
贯通龙骨断面类型:
38*12;
紧固材料:
射钉、膨胀螺栓、镀锌自攻螺丝(12mm厚石膏板用25mm长螺丝,两层12mm厚石膏板用35mm长螺丝)、木螺丝等。
填充材料:
玻璃棉、矿棉板、岩棉板等,按设计要求选用。
二、工艺流程

工艺节点↑
弹线→做地梁(有设计要求时)→安装天地龙骨→竖向龙骨分档→安装竖向龙骨→管线布置→安装横向卡档龙骨→安装门洞口框→安装一侧罩面板→安装隔音棉→安装另一侧罩面板→验收
三、施工工艺
弹线↑
1、弹线在基体上弹出水平线和竖向垂直线,以控制隔断龙骨安装的位置、龙骨的平直度和固定点。
地梁支模↑
2、设计有要求时,按照设计要求在地面按照弹线支模,浇筑地梁;
3、沿弹线位置固定沿顶和沿地龙骨,各自交接后的龙骨,应保持平直。固定点间距应不大于1000mm,龙骨的端部必须固定牢固。边框龙骨与基体之间,应按设计要求安装密封条。

当选用支撑卡系列龙骨时,应先将支撑卡安装在竖向龙骨的开口上,卡距为400~600mm,距龙骨两端的为20~25mm。
穿心龙骨↑
4、选用通贯系列龙骨时,高度低于3m的隔墙安装一道;3~5m时安装两道;5m以上时安装三道。

5、门窗或特殊节点处,应使用附加龙骨,加强其安装应符合设计要求。
6、安装罩面板(一侧),宜竖向铺设,其长边垂直放。
安装罩面板↑
罩面板安装前应对预埋隔断中的管道和有关附墙设备等,采取局部加强措施。罩面就位后,用自攻螺钉将板材与轻钢龙骨紧密连接。自攻螺钉进入轻钢龙骨内的长度以不小于10mm为宜。
自攻螺钉的间距为:沿板周边应不大于200mm:板材中间部分应不大于300m,双层石膏板内层板钉距板边400m,板中600m:自攻螺钉与石膏板边缘的距离应为10~15mm。
7、安装罩面板(另一侧)
填充隔音材质↑
石膏板缝与对面的板缝不得布在同一根龙骨上。安装防火、隔音等材料,与另一侧石膏板同时进行填入,填充材料应铺满、铺平。
第2层板的安装方法同第1层,但必须与第1层板的板缝错开,接缝不得布在同一根龙骨上。
8、隔断的下端如用木踢脚板覆盖,隔断的罩面板下端应离地面20~30mm;如用大理石、水磨石踢脚时,罩面板下端应与踢脚板上口齐平,接缝要严密。
9、质量验收:

验收标准↑
好了,以上就是轻钢龙骨的隔墙工艺,我们需要把施工工序牢记,再来帮你回顾一下:
弹线→ 做地梁(有设计要求时)→ 安装天地龙骨→ 竖向龙骨分档→ 安装竖向龙骨→ 管线布置→ 安装横向卡档龙骨→ 安装门洞口框→ 安装一侧罩面板→ 安装隔音棉→ 安装另一侧罩面板→ 验收
下面我们就继续学习另一种轻质隔墙,是来自我们每日问答的网友分享,今天一起整理让你进一步学习,会有不一样的收获。
02.
轻质板材隔墙施工
工艺你了解多少?

板材隔墙↑
板材隔墙↑
板材隔墙↑
工艺流程:
施工放线 → 安装固定件 → 配制胶粘剂 → 安装隔墙板→检查平整垂直→布线管→板缝处理→板面修补→隔墙验收→面层处理
我们来逐步来对这些工艺节点进行分析:

清理隔墙板与顶面、地面、墙面的结合部,凡凸出墙面的砂浆、混凝土块等必须剔除并扫净,结合部尽力找平。
施工放线、分档:
在地面、墙面及顶面根据设计位置,弹好隔墙边线及门窗洞口线,并按板宽分档。
安装固定件:

墙板与地面、顶面、柱及墙面的连接应用U型或L型卡件固定。在与地面、顶板、梁连接时,卡件应固定在条板的接缝处;墙的高度每米打一个卡件;卡件应用射钉枪固定。
配制胶粘剂:
胶粘剂要随配随用。配制的胶粘剂应在30min内用完。
安装隔墙板:

安装隔墙板↑
隔墙板安装顺序应从与墙的结合处开始,依次顺序安装。按弹线位置安装就位,用木楔顶在板底,再用手平推隔板,使板缝冒浆。

安装第二块板时,先在已装好的第一块板的侧面涂抹胶粘剂,然后按上述方法安装,两块板之间要用力贴紧,依次安装整个墙面。
检查平整垂直:

在安装过程中随时用2m靠尺及塞尺测量墙面的平整度,用2m托线板检查板的垂直度。要确保符合要求,如有不合理此阶段可以适当调整。
布线管:

安装墙体内线管、线盒以及填充材料,隔墙板安装完毕,待粘接剂干硬后,方可在墙面上钻孔、扩孔。
板缝处理:

隔墙板安装后,检查所有缝隙是否粘结良好,有无裂缝,如出现裂缝,应查明原因后进行修补。
板面装修:
如遇板面局部有裂缝,在做饰面前应先处理。
隔墙验收:

面层处理:
最后涂面层涂料即可。如贴瓷片,无需刮灰,直接用水泥浆将瓷片贴在墙板上即可,也可以直接粘贴墙纸,木饰板等。

文章来源:北京意匠设计
上一篇: 【北京意匠设计】抛光砖、玻化砖和釉面砖的区别及设计应用
下一篇: 没有啦
免费申请
装修服务
客服回访
确认需求
三份报价
方案 P K
享第三方
装修保障