北京装修公司 [切换城市]
设计456欢迎您!
您的位置: 北京装修> 北京今朝装饰> 动态详情

[北京今朝装饰]102平米,改出三室两厅,幸福感up!up!!

10-22
【导读】今天分享的案例,原始户型存在着明显的空间不合理,居室不够家里人住、采光一般的问题。业主希望装修后的房屋能够满足他们的生活需求,进而拥有一个实用而美观的家。



今天分享的案例,原始户型存在着明显的空间不合理,居室不够家里人住、采光一般的问题。业主希望装修后的房屋能够满足他们的生活需求,进而拥有一个实用而美观的家。


图片

装修信息  

小区名称/房屋位置:十里堡东里111号楼 

面积:102㎡ 

户型:两室一厅改三室两厅 

风格:现代简约 

图片


设计的关键在于解决问题。设计师这次的目标是尽可能利用空间,增强采光,并改造出额外的居室,同时保持家里的美观和舒适。


合理的空间划分


图片

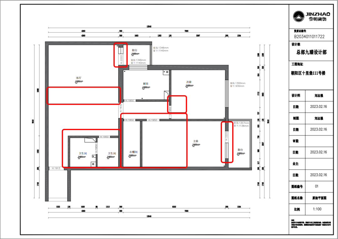
▲原始户型图

图片

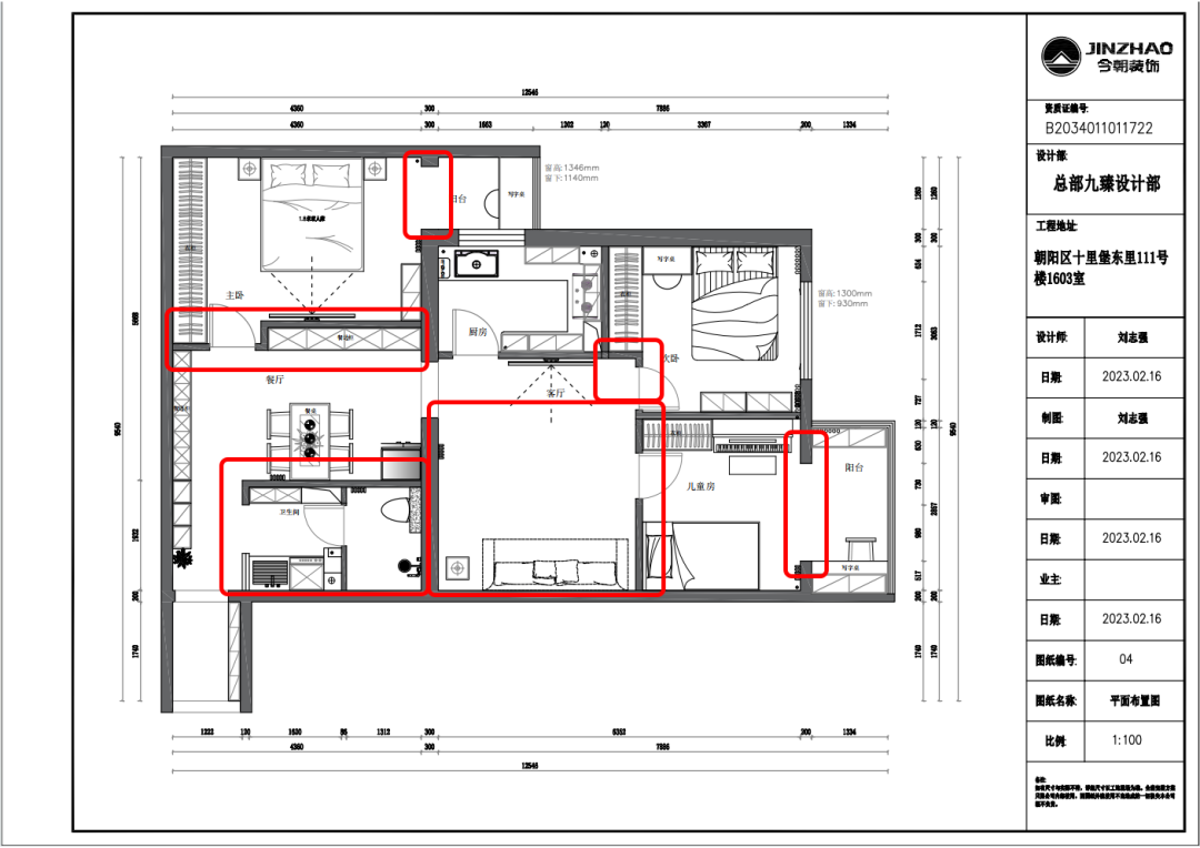
▲平面布局图


对空间进行合理划分。原始户型中存在一些不必要的空间浪费和功能区域重叠,设计师通过重新规划来合并和优化这些空间。


图片


例如,原户型客厅、主卧面积很大,只有2个卧室,但家里人口多,不方便居住。因此将原客厅砌墙,改为主卧。


图片图片


将原主卧隔壁的小衣帽间拆除,与原主卧融为一体,在这个大空间中砌一道墙,空间一分为二,一侧是儿童房,一侧是客厅。儿童房与阳台区域打通,更为开阔。


图片


其次,设计师还很注重空间的连续性和通透感。在划分新的功能区域后,将使用开放式设计来连接各个空间,使整个家看起来更宽敞和明亮。


例如,卫生间和走廊之间,使用玻璃半墙隔断代替传统的实墙,既保留了两个空间的独立性,又增加了空间的开放性。


动线设计


再来关注家居动线的设计。在家居动线的设计上,设计师尽可能为业主减少不必要的走动和交叉路径,让在家中的活动更加流畅和便捷。


图片


例如,卫生间墙体拆除,改成玻璃半墙隔断,此处改为开放式盥洗区,家里人口多,这样设计更方便大家走动、洗漱。


图片


再有就是厨房的设计。案例中的厨房是典型的一字型厨房。一字型厨房的结构和动线规划都很简单。但是在使用过程中,会产生高频的折返,比较累。因此在设计时要注意:


首先,鉴于厨房空间有限,设置橱柜的时候就要尽可能「贴墙布置」以适应空间的特点,同时也能满足基础的收纳需求。


图片图片


空间有限,那么「备餐区」和「灶台区」的面积都比较局限。要根据做饭的步骤设计不同功能区的位置。一般的设计是:洗涤区-备餐区-烹饪区。


增加储物空间


利用墙面空间,定制整体收纳柜,将各类物品、杂物放在里面,划分清晰,高效整洁,有效利用空间。


图片图片图片图片


注重细节处理


在设计中,考虑到每个空间的功能需求和使用者的习惯,加入一些人性化的设计元素。


图片


例如,在玄关处设置足够的储物空间,以方便进出门时随手放置物品。


图片



双眼皮吊顶,避免出现积灰的现象,打扫起来更轻易和方便。


大化地保留了层高。双眼皮吊顶沿着墙边绕一圈做造型,对于层高几乎没有任何影响。


整个空间看上去更开阔宽敞。双眼皮的跌级层次,让空间在美学和视觉上更加有层次感。


另一方面,不易开裂,而且造价也非常有优势。


图片


悬浮式床头柜既显得轻盈又避免了卫生盲区。延伸了床头柜台面长度,置物面积更大。上部设计成吊柜,不会影响吊柜门开合。避免了传统床头柜有卫生死角的问题。


图片


玻璃隔断,轻盈通透,无采光问题、节省空间、整体性强,颜值高。


这里选择的是长虹玻璃,带有竖条形波纹。透过波纹,物体会呈现若隐若现的朦胧美感,美观的同时起到了一定保护隐私的作用。


如果家里想做同款长虹玻璃隔断,选钢化玻璃。其次是一定要选超白玻璃!看上去非常洁白透亮,透光性也更好。


图片


灯带式镜前灯,绕着镜子一圈,「见光不见灯」的设计时尚简约,光照柔和,不会产生直射的眩光。通过光线塑造空间的线条感,让空间看起来轻盈又富有层次感。


图片


厨房中的收纳空间有限,可以考虑案例中的悬挂式储物,在厨房里安装吊钩或挂架,将砧板、调料、抹布等吊挂在墙上,让厨房台面更整洁。


点击北京今朝装饰,了解更多装修内容。




分享到:
点赞 1804 收藏
免费服务
信息将被严格保密,《隐私保护条例

今日已有221位业主免费获取到报价清单

北京今朝装饰

地  址: 丰台区顺一条8号今朝装饰有限公司

电  话: 13381033318

联系人: 孙经理

相关推荐
北京展馆装修设计公司排名北京全包装修公司哪个好北京崇文区装修公司有哪些北京东城区装修公司有哪些北京网咖装修设计公司排名北京商场装修设计公司排名北京二手房翻新装修公司排名北京火锅店装修公司哪家好北京性价比高的装修公司北京家庭装修公司排名
1

免费申请
装修服务

2

客服回访
确认需求

3

三份报价
方案 P K

4

享第三方
装修保障

您的信息将被严格保密,《隐私保护条例

今天已有526位业主预约了免费精准报价