当前城市:  [切换]
一站式装修设计平台,为您提供优质装修服务!
设计456欢迎您!
当前位置: 首页 > 装修知识 >

昆明保利大家109平三居室装修案例 美式风格设计

昆明保利大家109平三居室装修案例 美式风格设计

作者:设计456 发布时间:08-09 17:46
阅读 1391 评论
【导读】 昆明装修公司今天为大家分享的案例是一套位于保利大家美式风格的装修效果图,109平米三室两厅一厨两卫的户型。设计要点:房间采用简约设计,并没有采用美式风格中常见的奢华风,而是用简约大气的设计营造出一种优雅的氛围。一起来欣赏一下吧。

这套109平米的三居室主要是业主一家三口在居住,所以在设计上非常温馨。接下来就和昆明装修公司一起来欣赏一下吧。

109平米美式风格装修效果图

可以设计很简约,白色的墙面,灰色的沙发以及原木风实木茶几。

109平米美式风格装修效果图

落地窗设计让空间很明朗。

109平米美式风格装修效果图

厨房与餐厅采用透明玻璃隔断,一面嵌入式白色储物柜超实用。

109平米美式风格装修效果图

卧室淡粉色墙面很温馨。

109平米美式风格装修效果图

儿童房内采用上下铺设计,里面设计成一个小书房。

109平米美式风格装修效果图

厨房内U型设计,收纳功能超强。

109平米美式风格装修效果图

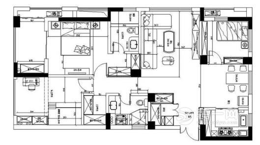
109平米平米户型图

以上就是昆明装修公司为大家分享的保利大家109平米美式风格装修效果图,希望大家能够喜欢。

保障金
最新文章

网友评论:

还可以输入200个字

热门评论