武汉装饰公司圣都装饰星河落入一舟醉梦,梦一场浮生贪欢,蝴蝶翕动羽翼,往更辽阔的沧海而去!

实景欣赏
新中式风格包含了传统中式元素和现代元素,家具多以实木材料为主,既有实用性,搭配上现代元素,又能够体现视觉上的美感。新中式风格对格局要求比较高,特别是玄关对整个户型的风水起到了至关重要的作用。
客厅






厨餐厅




卧室


书房
茶室是中式风格里面不可或缺的一个区域,宁静的午后,邀几个朋友,泡一壶普洱......在不同区域空间摆放大量的装饰品,包括数量繁多的绿植、抱枕、装饰画、字画及不同数量的工艺品,这些装饰品对整个空间起到了画龙点睛的作用。



楼梯



天台



卫生间

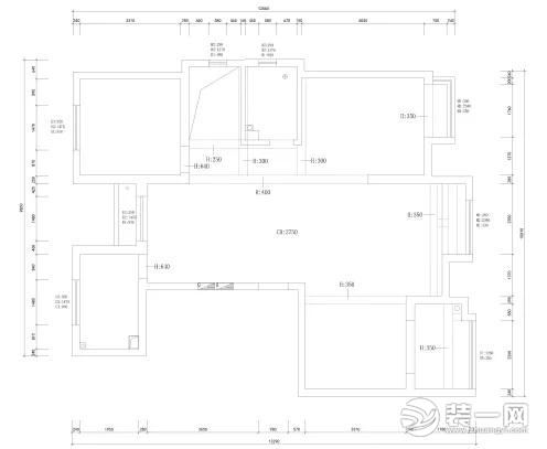
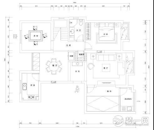
户型解析

