新房装修是一大家子的大事,不仅仅是装修风格要自己喜欢,装修费用也不能太高,能在合理的预算中,装修出更好的效果才是我们想要的。120平米的房子也不算小了,120平米装修预算多少够呢?装修前,多看看别人家装修效果,才能更好控制预算,20万打造环保又舒适的好效果,大家也可以学习一下。
点击参考:120平毛坯房装修多少钱?10万全包120平装修预算报价清单表
一、120平米装修预算多少够?
1.水电安装:一般120平米的房子,水电改造安装费用要在1万元上下,要是施工难度跟复杂度高,可能上2万元。
2.基础人工费部分:除了水电,其他墙面处理、铺贴瓷砖、木工部分、油漆部分,120平米的房子,人工费大约要在5-7万元左右。
3.主材费用:瓷砖、木地板、灯具、洁具、橱柜、装饰板……想要装修效果好,这部分的费用要跟人工费差不多,基本也要在5-7万元。
4.软装家电费用:窗帘、沙发、床、衣柜、酒柜、电视柜、餐桌椅、中央空调、厨电、洗衣机等费用基本不可控,高级的沙发多要上万,中央空调一般都在2万-3万,软装10万-30万都有可能。

二、20万打造120平环保又舒适的好效果
实用面积:120平
装修风格:现代时尚风
参考造价:20万
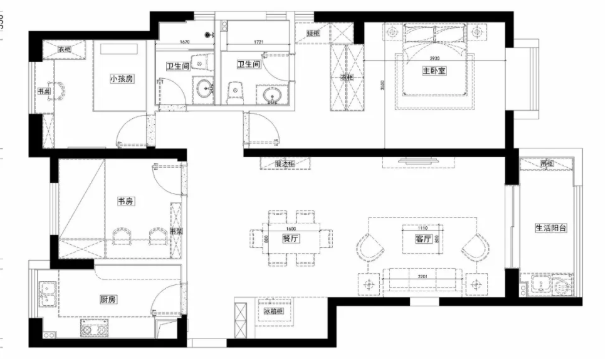
平面布置图:

对原户型无过多改动,在入户门右侧做隐藏式储物间和冰箱放置区,挪开冰箱后方隐藏空间用于储藏过季和很久不用的物件。

沿着入户动线即见餐厅,地面通铺进口地板,留白顶面设计垂吊三盏北欧风格吊灯。1.6m的长餐桌,平常一家三口用绰绰有余。

客餐厅互通,空间开阔,视觉和采光通透。

客厅,进口木地板的自然纹理由地面延伸至电视背景墙,铺垫了整个居家的温馨格调。

白色护墙结合一面深蓝色乳胶漆墙面,点缀装饰画与黄色落地灯,给人眼前一亮的清新感。

客厅望向餐厅视角

厨房,白色石纹瓷砖搭配白色橱柜门片,上柜的木色元素与整室的木色相呼应。

儿童房,以简洁的硬装基调,搭配色彩丰富的软装小家具,让孩子的世界充满童趣。

主卧,整体配色更为简洁素雅,皮质大床搭配分子吊灯,复古绿窗帘与火烈鸟挂画增添一丝INS风格。衣柜跟衣帽间的衣柜是背靠背的设计,同时在拐角处做一些装饰隔断,来填充整个素雅的主卧室空间。

主卧衣柜后方的步入式衣帽间,高低柜体结合,半开放式设计,满足不同的收纳需求。

120平米装修预算多少够?加上软装,20万打造120平米环保又舒适的好效果,真的很不错了。不懂装修,还是要在装修前多对比装修公司才行,让装修更有保障。
上一篇: 140平新中式风装修
下一篇: 铺贴地砖多少钱一平方