当前城市:  [切换]
一站式装修设计平台,为您提供优质装修服务!
设计456欢迎您!
当前位置: 首页 > 装修知识 >

宝贝天天说新房子装修好漂亮 感谢重庆新思路公司

宝贝天天说新房子装修好漂亮 感谢重庆新思路公司

作者:设计456 发布时间:06-15 18:59
阅读 568 评论
【导读】 已经入住新家很久了,每天宝贝都问妈妈:“为什么我们家新房子装修的这么好看啊”。我和老公也是非常喜欢,星期天的的时候,亲戚朋友谁来家里都说我们会生活,真的很感谢重庆心思路装修公司给我家装修这么漂亮的房子!给大家看看我家美式风格两室两厅装修图篇,这是我们的新房装修实景图。

给大家看看重庆新思路装修公司为我们家打造小窝,美式风格两室两厅装修图片!

客厅

美式风格两室两厅装修图片新房装修实景图客厅

美式风格两室两厅装修图片新房装修实景图客厅

卧室

美式风格两室两厅装修图片新房装修实景图卧室

儿童房

美式风格两室两厅装修图片新房装修实景图儿童房

洗手间

美式风格两室两厅装修图片新房装修实景图洗手间

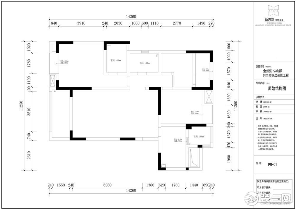
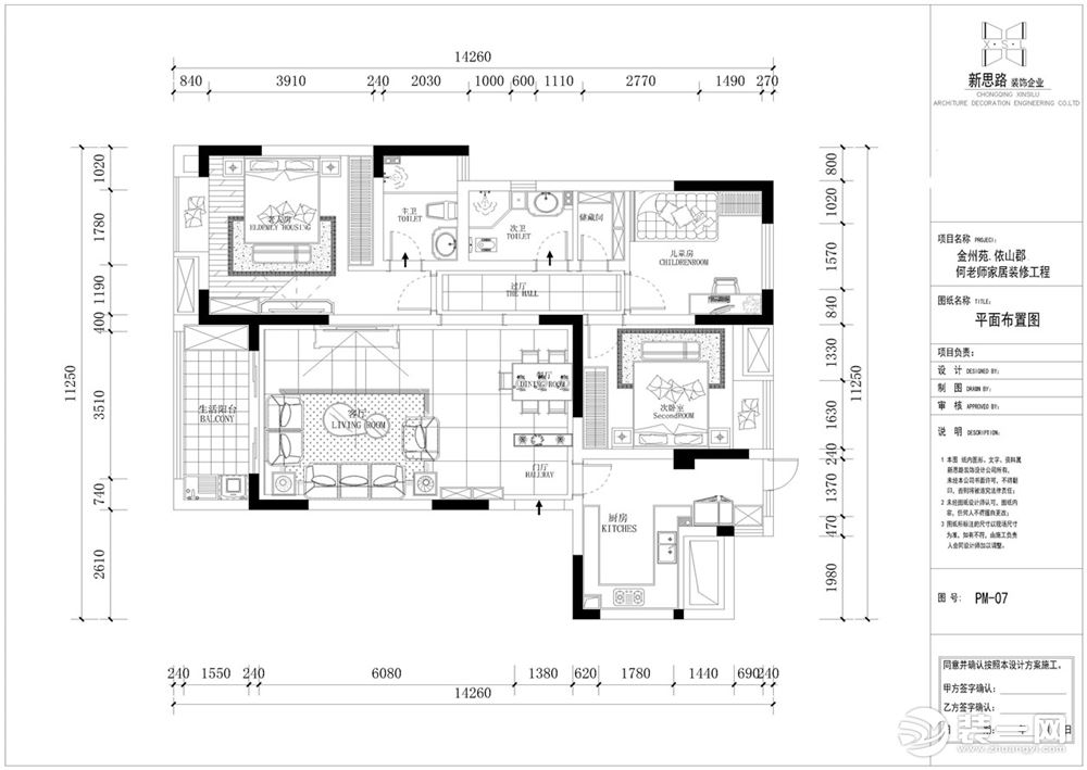
这是我家原始的结构图和后来重庆新思路装修公司过我们设计的,大家可以拿去做参考。

两室两厅户型图

希望大家也可以在一个美美的家里开心的生活!

两室两厅平面设计图

最后再表示一下对重庆新思路装修公司的感谢!这套美式风格两室两厅装修我们都很喜欢!

保障金
最新文章

网友评论:

还可以输入200个字

热门评论