听说过欧式风格、简欧风格、欧式田园风格,南欧乡村风格,估计很多同学对这种装修风格都比较陌生,本文,装修网小编为大家介绍的就是这样一篇110平的南欧乡村风格装修日记,同时,附上了装修的总费用,大家参考哦!
房屋面积:110平米
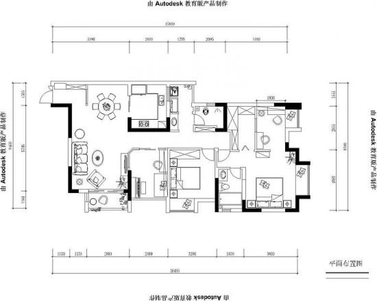
户型图

业主的前期的要求
如1:进门坐榻和鞋柜的设计、隔断的独特木作工艺
2、阳光书房的面积扩展和玻璃门转角透光设计
3、厨房延展高效利用、客卫干区与生活阳台打通后矮墙地中海式门洞小砖搭配
4、较大的改动就在主卧两房变一房的大套间三连拱设计。
入户坐榻
进门入户的坐榻,鞋柜的设计

餐厅
搭配方案

客厅
客厅,明媚如花

阳光书房外面
灰蓝色的阳光书房,透明隔断

外置的款洗台
为了方便,还是使用了外置款洗台,人多了用起来也不打挤,而且设计的还美观,又是一大亮点

主卧,还有手绘

主卧的书房

女儿房依然是粉色系为主,衣柜是在外面定做的,白色,自己绣的十字绣拿来挂在房间里面了

厨房现场做的橱柜

次卫的砖

主卫

110平装修总费用
基装是6万,非基装部分(就是木作,土建改造,造型吊顶)5万多,这部分做了很多木作,比如:鞋柜,入户隔断,餐厅护墙板,过道拱形门洞,阳关书房整体造型隔断和对开门,阳光书房造型书架和书桌,现场橱柜,主卧小窗造型,主卧连拱造型加实木线条,两个卫生间款洗台,洗衣槽,过道杂物柜,生活阳台杂物吊柜,主卧书房造型吊柜,过道拉缝吊顶,阳关书房假梁拉缝吊顶。
设计师的设计费是60元一平;还有是托马士的家具一套5万多,加上另外一些配饰和网购窗帘,家电,大致一共的花费可能是在20W+。更多装修美图请点击https://www.sj456.cn/进行查看。
上一篇: 90平米装修多少钱 90平米装修报价清单
下一篇: 装修价格 装修人工价格 装修人工费用