现在小户型房是大多数家庭能买得起的刚需房,但是小户型房得房率也不高,不想要家里显拥挤,还是要提高利用率,还是要从装修入手,找个好装修公司,有个好设计,小户型提高利用也能变出大空间,89平木色北欧风装修,把小露台也变成卧室,大家可以学习下。
建筑面积:89平
装修风格:北欧风
参考造价:25万
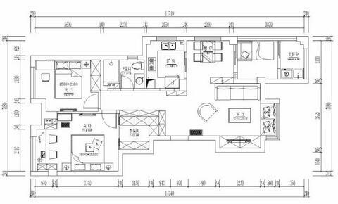
平面布置图:

1.入户装修
入户采用成品黑板上墙,结合木质玄关柜布置端景。

2.客厅装修
客厅为加长沙发与电视的距离,敲薄客厅墙体,并在客厅与餐厅中用矮吧台柜来做隔断。

灰色主沙发依靠木皮包裹的半墙隔断,北欧风家具与灯饰更显家的温馨。

木色圆形茶几与沙发背景色调呼应,半墙立面点缀置物墙饰。

客厅飘窗改造出储物机能,连电视背景墙全部设计储物柜,充分满足小户型收纳。

客餐厅以半墙吧台隔断划分场域。

3.餐厅装修
餐厅一旁的吧台隔断,下方增加储物柜体,兼作餐边柜使用。

餐桌的木纹与地面纹理相呼应,木纹砖更方便打理却保留了木色的温馨视觉。

3.厨房装修
厨房,小白砖墙面结合木纹橱柜门,经典且耐看。

4.卧室装修
8㎡露台变身mini卧室+生活阳台。

mini卧室留出部分空间布置生活阳台,用于洗晒功能,装修废料利用DIY错落柜门。

儿童房,敲掉飘窗增加阅读区,浅黄色墙面点缀装饰画,清新有活力。

主卧,以浅黄色为基调,搭配实木家具,一盏羽毛吊灯给予温暖柔和的视觉感。

将主卧与小阳台打通,变为小书房,铺设地毯加懒人沙发。

5.卫生间装修
卫生间整体通铺灰色系瓷砖,白色成品浴室柜与镜柜大小适宜,简洁实用。

小户型装修怕显得拥挤,户型也有不少缺陷,装修也就更显重要了。小户型提高利用也能变出大空间,89平木色北欧风装修,设计真的太重要。特别是不懂装修自己又没有时间的一类朋友,建议大家更是要多在设计456网上多学习,对比装修公司口碑,让装修更省心。
上一篇: 4个小技巧轻松装出网红庭院
下一篇: 12万爆改45平小公寓旧房改造