
房子外观

房子外观

要修建这样一所房子,一定要解决好斜坡带来的层高问题和地下一层卧室的采光。比利时的设计团队OYO在合理布局上花了很多心思。进门后直接进去的是起居室,正好在斜坡的下面,于是层高最低的地方放了一个沙发。餐厅和开放式厨房在旁边,与起居室有几个台阶的错层,餐厅正好在那个较宽盒子的下面,有一个较为空旷的环境和最好的采光。对比之下,厨房这样的工作间就可以在倾斜屋顶的环境中了。

起居室

厨房和餐厅

从厨房和餐厅的角度看起居室,厨房旁边有一个火炉,它挨着通向后院的门,夏天可以做烧烤。

入口旁边是一个向下的楼梯,通向地下一楼的卧室区。它们主要分布在厨房和餐厅之下,只有大概半层的高度,也因为厨房和餐厅的错层抬高,两边留出了大概30 厘米的高度作为地下一层的窗口,保证了采光和通风。所以,从住宅侧面看到的窗户是来自地下一层的。

抬高后留出的窗户

从建筑外面看到窗户,室内可以看到大面积使用的木地板、石头火炉、白色的橱柜和彩色的餐椅,营造出家的气氛,“使用木头和温暖的材料是想要创造一个北欧式的简洁风格”。

餐桌特写

从餐厅看起居室

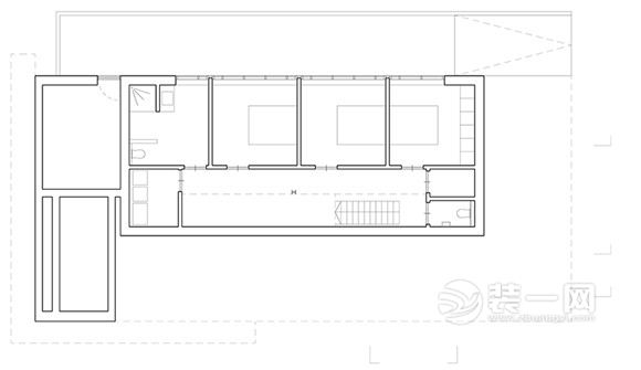
一楼平面图

地下一楼平面图