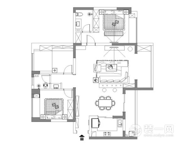
合肥装修公司小编推荐的这套案例,建筑面积130平,使用面积110平,用浅灰色的基调,运用木饰面的材质,勾勒出散发着自然神韵的简约风,入户墙面错落安装几个多色衣帽钩,一组木色储物柜作鞋柜使用

入户后的客厅玄关端景,深色实木玄关柜,孔雀蓝的陶瓷瓶,在现代的壁灯照耀下,中式和简约的混搭协调搭配

餐厅地面通铺木质地板,白色简约墙面与吊顶设计,装一盏吊扇灯,一套中式风餐桌椅,蒂芙尼蓝的窗帘和白色谷仓门,提高空间颜值

餐厅与客厅之间设计了一个简易吧台,三个黑色吊灯,增加空间层次,既保证了空间的相对独立性,同时又不会打破大空间的通透感

客厅地面通铺木质地板,灰色系的布艺沙发,与整体空间的灰色基调相呼应,造型圆润的茶几,现代感的设计,既有年轻时尚感,同时也十分显得沉稳,大气,落地玻璃窗,搭配纯色棉麻窗帘,赋予空间极好的采光

木质面的电视背景墙,没有其他修饰,摆放一个电视柜,凸显简约之美,略带北欧风的水泥色盆景,整体给人自然清新的视觉体验

原木色的木质家具,在中式背景画中,更有独特韵味

厨房以U型布局设计,最大化的利用了每一寸空间,地面与墙面通铺灰色瓷砖,白色橱柜搭配黑色台面,整体线条利落,动线流畅

书房地面通铺木地板,榻榻米与收纳柜,增加了储物空间,收纳墙体中设计了书桌与书架,让书房变成了一个可以作临时客房的多功能空间

次卧是给父母设计的空间,无造型的的床头设计,显的干净自然,中国风的简约水墨画搭配现代感的的床头灯,让氛围沉稳内敛又简约大气

主卧为夫妻的婚房,原木的大床与原木衣柜,床头用简约壁灯和装饰画点缀,活泼可爱的床头调和了大量木质赋予的成熟气质

卫生间整体以灰色为主调,哑光的瓷砖面,给人温和的感觉,马桶的背景用粉色瓷砖铺贴,让卫生间在沉稳中透露一丝俏皮

以上就是合肥装修公司小编推荐的新中式风格装修案例,温馨雅致,欢迎大家来借鉴~